立即预约 立即预约
免费定制整装家居

免费定制整装家居

一站置家 全程无忧 一省到底
hide.png

当前位置: 首页 > 装修案例效果图 > 金地铁西檀府

金地铁西檀府 85平 现代简约风格效果图

收藏
案例风格 现代简约 案例户型 二居 案例面积 85平米
楼盘名称 金地铁西檀府 设计师 林凤装饰设计 案例类型 改善性住宅

设计理念:本案设计风格为现代简约,大量采用冷灰色,体现男业主的精简干练。

客厅
第1张
第2张
第3张
餐厅
第1张
第2张
卧室
第1张
第2张
卫生间
第1张
第2张
厨房
第1张
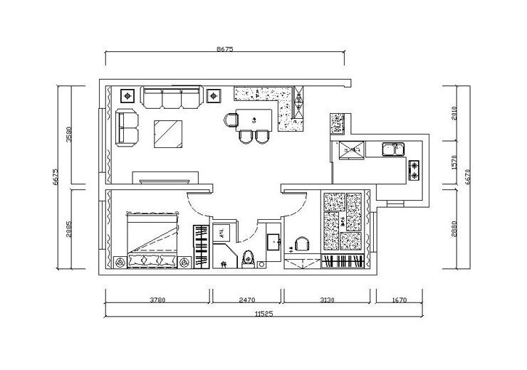
户型图
第1张
  • 案例详情

S2-金地铁西檀府-80平-现代简约- 客厅2.jpg S2-金地铁西檀府-80平-现代简约- 客厅3.jpg S2-金地铁西檀府-80平-现代简约- 首图.jpg

金地铁西檀府85平两室两厅现代风格林凤装饰的客厅浅灰色壁纸与地面遥相呼应。背景墙采用大理石与黑色不锈钢搭配,内嵌LED灯带,且灯带选择冷色系,跟空间色系更加协调。阳台的绿植使客厅更有生机。

S2-金地铁西檀府-80平-现代简约- 餐厅1.jpg 金地铁西檀府-80平-现代简约- 餐厅.jpg

金地铁西檀府85平两室两厅现代风格林凤装饰的餐厅选用的是卡座形式,在满足用餐的同时更具备储物功能,并且在玄关部分可以满足鞋柜的需求。

S2-金地铁西檀府-80平-现代简约- 卧室.jpg S2-金地铁西檀府-80平-现代简约- 榻榻米.jpg

金地铁西檀府85平两室两厅现代风格林凤装饰的卧室灰阶格调的衣柜搭配细长的衣柜拉手,营造出简单的层次感,在转角部分采用开放格,可以展示男业主所喜爱的手办。

S2-金地铁西檀府-80平-现代简约- 卫生间A.jpg S2-金地铁西檀府-80平-现代简约- 卫生间.jpg

金地铁西檀府85平两室两厅现代风格林凤装饰的卫生间采用的是整体定制的洗漱柜,镜柜嵌入上下灯槽,代替镜前灯,半嵌入的台上盆,更有艺术感,墙挂式洗漱柜解决了洗漱柜下不好清洁的弊端。钻石型浴屏可以使卫生间干湿分离,方便清理。洗衣机上吊架,可以养植物添加生机,也可以置放一些卫生间物品。

S2-金地铁西檀府-80平-现代简约- 厨房.jpg

金地铁西檀府85平两室两厅现代风格林凤装饰的厨房墙面采用白色瓷砖,增加空间感的同时会显得更加干净立正。橱柜采用的是方便使用的L型橱柜,上柜与下柜才用白色与木色搭配,更能拉伸空间感。

S2-金地铁西檀府-80平-现代简约- 平面图.jpg

户型图

案例设计师

林凤装饰设计

设计师:林凤装饰设计

从业时间:6年

设计理念:因生活而设计,因设计而美好。

预约设计师

算算你家装修多少钱

报名即享丰厚赠品,品质装修

免费报价
咨询热线:400-656-9909
20190221103704574636.jpg

精品设计案例

20180612134930523248.jpg 服务号二维码.jpg