立即预约 立即预约
免费定制整装家居

免费定制整装家居

一站置家 全程无忧 一省到底
hide.png

当前位置: 首页 > 装修案例效果图 > 祥龙居

祥龙居 90平 现代简约风格效果图

收藏
案例风格 现代简约 案例户型 二居 案例面积 90平米
楼盘名称 祥龙居 设计师 林凤装饰设计师 案例类型 改善性住宅

设计理念:户型是两室刚需户型,设计为现代黑白灰风格,采用现代较为流行的黑白灰搭配,白色大理石与浅灰地砖和黑色金属相搭配。

客厅
第1张
第2张
第3张
餐厅
第1张
卧室
第1张
第2张
卫生间
第1张
厨房
第1张
过廊
第1张
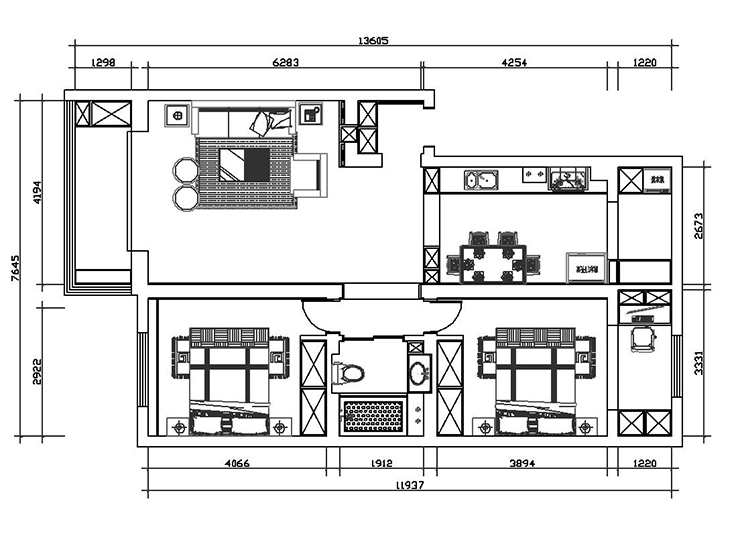
户型图
第1张
  • 案例详情

祥龙居-90平-现代风格-背景墙.jpg 祥龙居-90平-现代风格-客厅.jpg 祥龙居-90平-现代风格-首图.jpg

祥龙居90平两室两厅现代风格林凤装饰的客厅采用的是浅灰色的地砖,背景墙是白色大理石和定制的电视柜子,沙发背景墙是浅灰色的护墙板和长城板拼接而成,整体塑造的就是现代黑白灰风格。

祥龙居-90平-现代风格-餐厅.jpg

祥龙居90平两室两厅现代风格林凤装饰的餐厅是一个独立的用餐空间,摆放四人位的餐桌,完美解决业主的用餐问题。

祥龙居-90平-现代风格-卧室.jpg 祥龙居-90平-现代风格-主卧.jpg

祥龙居90平两室两厅现代风格林凤装饰的主卧是现代风格的双人床,背景墙也是硬包的护墙板,定制了一米八长的衣柜大大增加的储物空间,灯具和墙饰也是现在较为流行的搭配。

祥龙居-90平-现代风格-卫生间.jpg

祥龙居90平两室两厅现代风格林凤装饰的主卫生间采用统一的色系的墙砖与地砖,卫生间是800宽的浴室柜,淋浴区采用定制浴屏,洗澡以后更方便清理。

祥龙居-90平-现代风格-厨房.jpg

祥龙居90平两室两厅现代风格林凤装饰的厨房是采用的AB的版定制的橱柜,台面是灰色的大理石结实耐用,厨房空间合理利用,洗菜切菜炒菜更加方便。

祥龙居-90平-现代风格-走廊.jpg

祥龙居90平两室两厅现代风格林凤装饰的过廊

祥龙居-90平-现代风格-平面图.jpg

户型图

案例设计师

林凤装饰设计师

设计师:林凤装饰设计师

从业时间:5年

设计理念:打动人的是生活,设计基于生活。

预约设计师

算算你家装修多少钱

报名即享丰厚赠品,享半价装修

免费报价
咨询热线:400-656-9909
20190221103704574636.jpg

精品设计案例

20180612134930523248.jpg 服务号二维码.jpg