立即预约 立即预约
免费定制整装家居

免费定制整装家居

一站置家 全程无忧 一省到底
hide.png

当前位置: 首页 > 装修案例效果图 > 大河宸章

大河宸章 146平 轻奢风格效果图

收藏
案例风格 轻奢 案例户型 三居 案例面积 146平米
楼盘名称 大河宸章 设计师 林凤装饰设计师 案例类型 改善性住宅

设计理念:本设计方案以现代轻奢风格为主,主色系为黑白灰加跳色,材质上选择了护墙板和理石,为客户打造一个轻奢的空间。

  • 案例详情

大河宸章-146-现代轻奢-沙发背景墙.jpg 大河宸章-146-现代轻奢-首图.jpg

大河宸章146平三室两厅现代轻奢风格林凤装饰的客厅采用硬包及理石墙面造型,客户多喜欢一些现代化材质,一面墙用两种材质相结合。

大河宸章-146-现代轻奢-餐厅01.jpg 大河宸章-146-现代轻奢-餐厅02.jpg

大河宸章146平三室两厅现代轻奢风格林凤装饰的餐厅餐桌多采用跳色,用橘色的色彩来衬托整个房间活跃的氛围。 原来厨房餐厅尺寸较小,把厨房餐厅打开变成一体式餐厨,增加了使用空间,做成了回流动线,增加了效果感官。厨房是开放式厨房,采用灰色地砖上墙饰面,与房间整体风格相呼应。

大河宸章-146-现代轻奢-次卧.jpg 大河宸章-146-现代轻奢-榻榻米01.jpg 大河宸章-146-现代轻奢-主卧01.jpg 大河宸章-146-现代轻奢-榻榻米02.jpg 大河宸章-146-现代轻奢-主卧02.jpg

大河宸章146平三室两厅现代轻奢风格林凤装饰的卧室

大河宸章-146-现代轻奢-门厅.jpg

大河宸章146平三室两厅现代轻奢风格林凤装饰的玄关

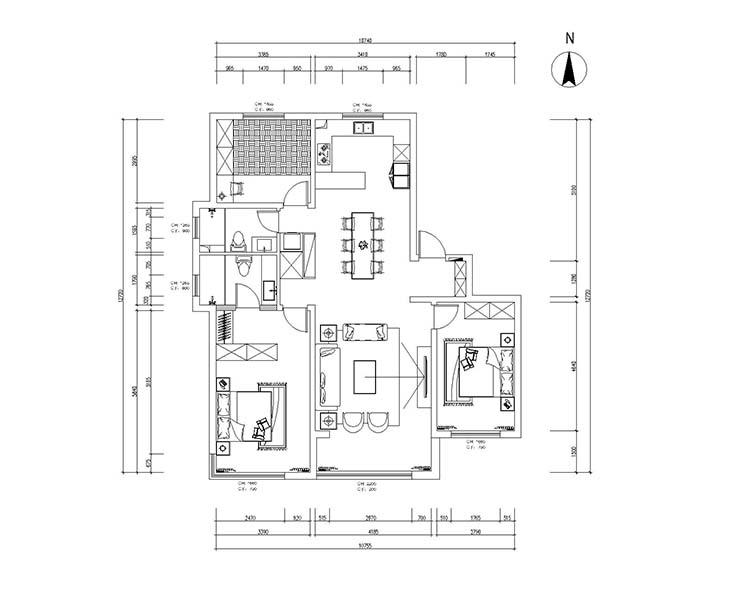
大河宸章-146-现代轻奢-平面.jpg

户型图

案例设计师

林凤装饰设计师

设计师:林凤装饰设计师

从业时间:4年

设计理念:将设计融于人性,将家居带入悠闲自在的情境

预约设计师

算算你家装修多少钱

报名即享丰厚赠品,品质装修

免费报价
咨询热线:400-656-9909
20190221103704574636.jpg

精品设计案例

20180612134930523248.jpg 服务号二维码.jpg