立即预约 立即预约
免费定制整装家居

免费定制整装家居

一站置家 全程无忧 一省到底
hide.png

当前位置: 首页 > 装修案例效果图 > 假日兰庭

假日兰庭 95平 新中式风格效果图

收藏
案例风格 新中式 案例户型 二居 案例面积 95平米
楼盘名称 假日兰庭 设计师 沈阳林凤装饰 案例类型 改善性住宅

设计理念:本设计主要以黑白灰色调为主,辅以纯度较低的配色,整体以现代中式风格,在满足居住的空间属性外增加了一份底蕴。

客厅
第1张
第2张
第3张
第4张
餐厅
第1张
卧室
第1张
卫生间
第1张
厨房
第1张
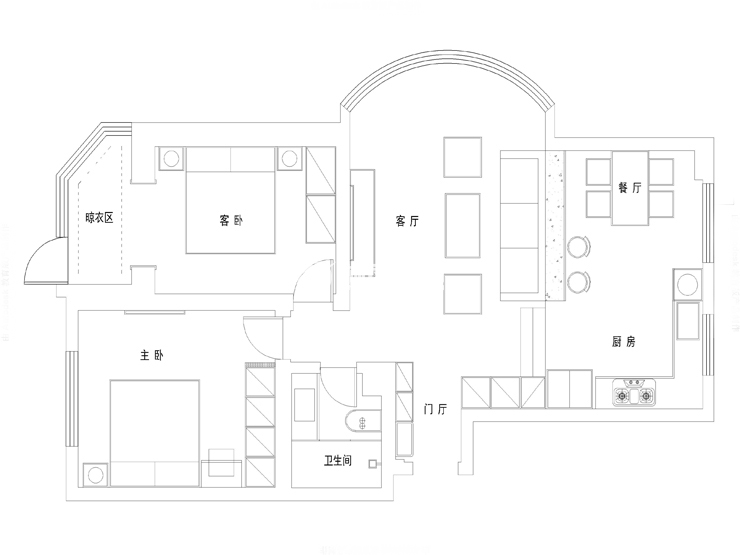
户型图
第1张
  • 案例详情

假日兰庭-95平-现代中式风格-客厅.jpg 假日兰庭-95平-现代中式风格-客厅1.jpg 假日兰庭-95平-现代中式风格-客厅3.jpg 假日兰庭-95平-现代中式风格-首图.jpg

假日兰庭95平两室两厅新中式风格林凤装饰的客厅区域整体以大理石地砖,电视背景墙则使用了硬包加墙板的装饰,让空间整体不会因为墙面的留白而单调,相反也使空间更加内敛细腻。

假日兰庭-95平-现代中式风格-餐厅.jpg

假日兰庭95平两室两厅新中式风格林凤装饰的餐厅空间采用实木餐桌,与厨房相连,使其餐厅空间更加纯粹。

假日兰庭-95平-现代中式风格-卧室.jpg

假日兰庭95平两室两厅新中式风格林凤装饰的卧室原木色为基调,使空间更具有温润的视觉感受,让身心疲惫进入此空间一扫而空。

假日兰庭-95平-现代中式风格-客厅2.jpg

假日兰庭95平两室两厅新中式风格林凤装饰的卫生间采用浴屏的干湿分离方法,减少业主生活打理的琐碎之事,墙面和地面以白色理石纹理砖装饰,让原本狭小的卫生间更加明亮。

假日兰庭-95平-现代中式风格-厨房.jpg

假日兰庭95平两室两厅新中式风格林凤装饰的厨房开放式厨房,实木的柜门造型,简洁而有厚重感,让男主人在此烹饪的过程会变得更加享受愉悦。

假日兰庭-95平-现代中式风格-平面图.jpg

户型图

案例设计师

沈阳林凤装饰

设计师:沈阳林凤装饰

从业时间:12年

设计理念:我们不是艺术家,我们只是用艺术的手法来做实用的东西。

预约设计师

算算你家装修多少钱

报名即享丰厚赠品,品质装修

免费报价
咨询热线:400-656-9909
20190221103704574636.jpg

精品设计案例

20180612134930523248.jpg 服务号二维码.jpg