立即预约 立即预约
免费定制整装家居

免费定制整装家居

一站置家 全程无忧 一省到底
hide.png

当前位置: 首页 > 装修案例效果图 > 龙湖天宸原著

龙湖天宸原著 245平 轻奢风格效果图

收藏
案例风格 轻奢 案例户型 三居 案例面积 245平米
楼盘名称 龙湖天宸原著 设计师 林凤设计师 案例类型 改善性住宅

设计理念:以色彩来开空间层次,现在时尚的外表下提现古典内涵。

客厅
第1张
第2张
第3张
第4张
餐厅
第1张
卧室
第1张
第2张
第3张
卫生间
第1张
厨房
第1张
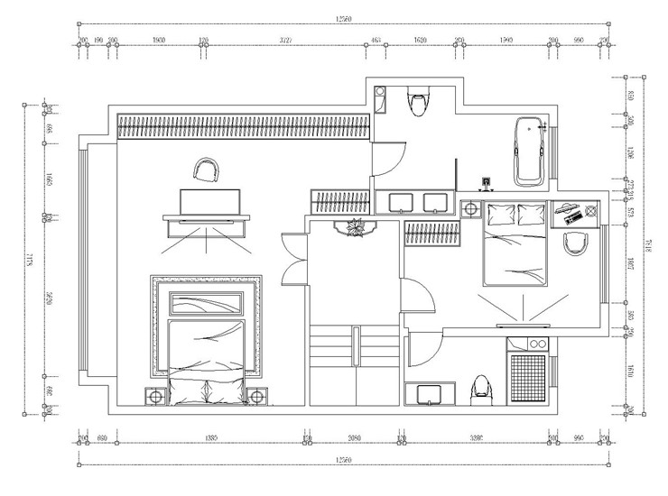
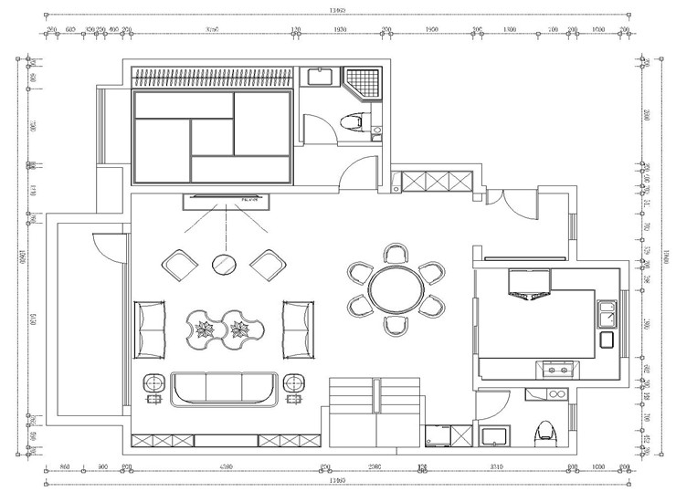
户型图
第1张
第2张
  • 案例详情

龙湖天辰原著245㎡-轻奢风格-客厅(首图).jpg 龙湖天辰原著-245㎡-轻奢风格-客厅.jpg 龙湖天辰原著-245㎡-轻奢风格-客厅2.jpg 龙湖天辰原著-245㎡-轻奢风格-客厅3.jpg

龙湖天宸原著245平三室两厅轻奢风格林凤装饰的客厅采用罕见的纯钴蓝色护墙板和展示柜搭配理石上墙,提现主人的高端审美内涵。

龙湖天辰原著-245㎡-轻奢风格-餐厅.jpg

龙湖天宸原著245平三室两厅轻奢风格林凤装饰的餐厅位置在流动空间内,因此需要一个边角圆润的餐桌作为过渡,搭配餐吊形成一个浮岛空间。

龙湖天辰原著-245㎡-轻奢风格-卧室.jpg 龙湖天辰原著-245㎡-轻奢风格-主卧2.jpg 龙湖天辰原著-245㎡-轻奢风格-主卧3.jpg

龙湖天宸原著245平三室两厅轻奢风格林凤装饰的卧室采用朴实的原木材质,以白色为主,暖白色的简单大方,增加卧室空间的舒适感。

龙湖天辰原著-245㎡-轻奢风格-卫生间.jpg

龙湖天宸原著245平三室两厅轻奢风格林凤装饰的卫生间白色防爵士白瓷砖上墙、搭配中性光使空间既柔和有整洁美观。在搭配木色和金属边框,提升奢华体验。

龙湖天辰原著-245㎡-轻奢风格-厨房.jpg

龙湖天宸原著245平三室两厅轻奢风格林凤装饰的厨房橱柜实用性与美观性兼顾,pet杏色色的柜体和浅色的台面让厨房更具有层次感,整个空间干净整洁提现科技感和时尚感。

微信图片_20200728084935.jpg 微信图片_20200728084941.jpg

户型图

案例设计师

林凤设计师

设计师:林凤设计师

从业时间:10年

设计理念:知行合一

预约设计师

算算你家装修多少钱

报名即享丰厚赠品,品质装修

免费报价
咨询热线:400-656-9909
20190221103704574636.jpg

精品设计案例

20180612134930523248.jpg 服务号二维码.jpg