立即预约 立即预约
免费定制整装家居

免费定制整装家居

一站置家 全程无忧 一省到底
hide.png

当前位置: 首页 > 装修案例效果图 > 五矿世家金城

五矿世家金城 135平 轻奢风格效果图

收藏
案例风格 轻奢 案例户型 三居 案例面积 135平米
楼盘名称 五矿世家金城 设计师 林凤设计师 案例类型 改善性住宅

设计理念:本案装修风格为现代轻奢风格
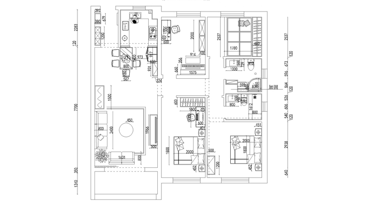
户型分析:
优点:本案不需要大的拆改,厨房朝向很好,有换鞋区。
缺点:房子的餐厅太小,餐桌空间拥挤,没有冰箱位置。卫生间太小。

客厅
第1张
第2张
第3张
第4张
第5张
餐厅
第1张
卧室
第1张
厨房
第1张
户型图
第1张
  • 案例详情

五矿世家金城135平-轻奢风格-客厅01.jpg 五矿世家金城135平-轻奢风格-客厅03.jpg 五矿世家金城135平-轻奢风格-客厅02.jpg 五矿世家金城135平-轻奢风格-客厅04.jpg 五矿世家金城135平-轻奢风格-客厅05.jpg

五矿世家金城135平三室两厅轻奢风格林凤装饰的客厅背景墙为大理石,造价三万左右,沙发背景墙旁边放鱼缸,所以没做造型,只是用一副大些的画做了重量感平衡设计,画的配色采用沙发中的咖色元素。吊棚没有划分区域,大气不琐碎。吊棚没有划分区域,大气不琐碎。

五矿世家金城135平-轻奢风格-餐厅01.jpg

五矿世家金城135平三室两厅轻奢风格林凤装饰的餐厅餐桌位于餐厅中心位置,餐桌中位与客厅茶几中位一致,餐桌上方做了一个吊灯设计,固定了餐桌的位置,增加格局感。餐厅吊灯与客厅吊灯在一条中轴线上,对称性很好。

五矿世家金城135平-轻奢风格-卧室.jpg

五矿世家金城135平三室两厅轻奢风格林凤装饰的卧室的床配奶茶色床品,走中性色路线。空间有限,大色块搭配。

五矿世家金城135平-轻奢风格-厨房.jpg

五矿世家金城135平三室两厅轻奢风格林凤装饰的厨房没有按轻奢风格统一设计,业主更多的需求是实用性,所以白色橱柜配砂岩色石英石台面,小厨房更明亮,台面也更耐脏。

五矿世家金城135平-轻奢风格-平面.jpg

户型图

案例设计师

林凤设计师

设计师:林凤设计师

从业时间:20年

设计理念:您的梦想由我来实现。

预约设计师

算算你家装修多少钱

报名即享丰厚赠品,享半价装修

免费报价
咨询热线:400-656-9909
20190221103704574636.jpg

精品设计案例

20180612134930523248.jpg 服务号二维码.jpg