立即预约 立即预约
免费定制整装家居

免费定制整装家居

一站置家 全程无忧 一省到底
hide.png

当前位置: 首页 > 装修案例效果图 > 三盛颐景园

三盛颐景园 89平 中式风格效果图

收藏
案例风格 中式 案例户型 二居 案例面积 89平米
楼盘名称 三盛颐景园 设计师 林凤装饰设计师 案例类型 改善性住宅

设计理念:本案采用中式的装修风格,大气又不失典雅,追求图案上的精致,多样性的线条也可以让空间显得更有层次感。

  • 案例详情

三盛颐景园-中式-89平-客厅-1.jpg 三盛颐景园-中式-89平-客厅-2.jpg 三盛颐景园-中式-89平-客厅-3.jpg 三盛颐景园-中式-89平-客厅-4.jpg

三盛颐景园89平两室两厅中式风格林凤装饰的客厅中式的家具总能给人一种庄重而又温馨的感觉,更加凸显主人的成熟稳重,也能让人感觉到一种精神上的寄托。

三盛颐景园-中式-89平-餐厅.jpg

三盛颐景园89平两室两厅中式风格林凤装饰的餐厅

三盛颐景园-中式-89平-卧室-1.jpg 三盛颐景园-中式-89平-卧室-3.jpg 三盛颐景园-中式-89平-卧室-4.jpg 三盛颐景园-中式-89平-卧室-2.jpg

三盛颐景园89平两室两厅中式风格林凤装饰的卧室采用榻榻米的设计,也可以在工作之余放松一下身心,整体的色调也采用暖色,更有助于睡眠。

三盛颐景园-中式-89平-卫生间-1.jpg 三盛颐景园-中式-89平-卫生间-2.jpg

三盛颐景园89平两室两厅中式风格林凤装饰的中式的卫生间一直保持的古雅的气息,采用的墙砖颜色也让整体感觉都变得明亮,也保持了整体的围合感和艺术感。

三盛颐景园-中式-89平-厨房-1.jpg 三盛颐景园-中式-89平-厨房-2.jpg

三盛颐景园89平两室两厅中式风格林凤装饰的厨房是房子中一个重要组成部分,实木的定制橱柜简单又不失大方,合理的利用空间,暖色瓷砖的墙壁也与实木互相衬映。

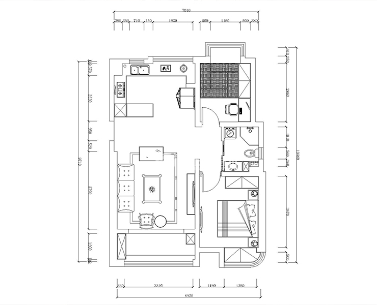
三盛颐景园-中式-89平-平面图.jpg

户型图

案例设计师

林凤装饰设计师

设计师:林凤装饰设计师

从业时间:4年

设计理念:在有限的空间做无限的设计,每一个作品都承载着一个家庭对美好生活的向往

预约设计师

算算你家装修多少钱

报名即享丰厚赠品,享半价装修

免费报价
咨询热线:400-656-9909
20190221103704574636.jpg

精品设计案例

20180612134930523248.jpg 服务号二维码.jpg