立即预约 立即预约
免费定制整装家居

免费定制整装家居

一站置家 全程无忧 一省到底
hide.png

当前位置: 首页 > 装修案例效果图 > 燕兴世福

燕兴世福 90平 现代简约风格效果图

收藏
案例风格 现代简约 案例户型 二居 案例面积 90平米
楼盘名称 燕兴世福 设计师 林凤装饰设计师 案例类型 改善性住宅

设计理念:本案是常规的两室户型,以常规的布局配合现代感强的色调和家具,给整个空间提升质感。

客厅
第1张
第2张
第3张
餐厅
第1张
卧室
第1张
第2张
第3张
卫生间
第1张
厨房
第1张
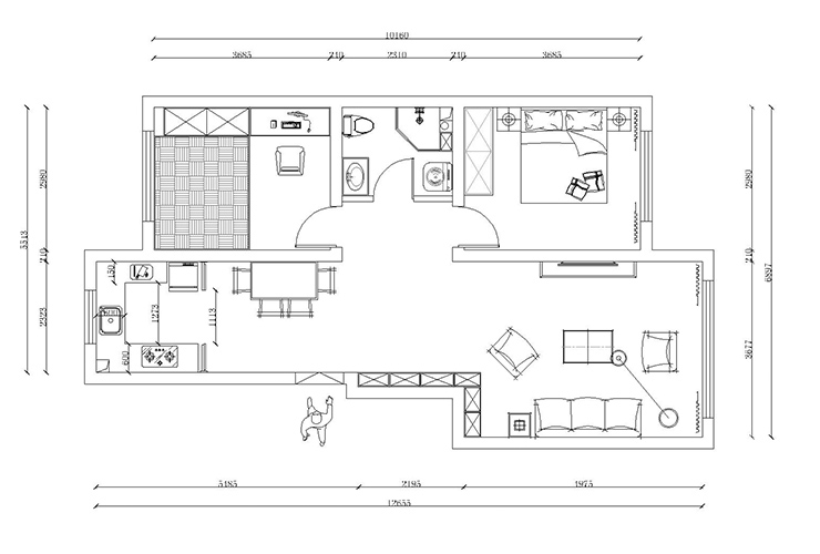
户型图
第1张
  • 案例详情

燕兴世福-90平-现代风格-客厅.jpg 燕兴世福-90平-现代风格-客厅二.jpg 燕兴世福-90平-现代风格-首图.jpg

燕兴世福90平现代风格三室两厅林凤装饰的客厅石材与护墙板的结合,让空间变得立体,结合灰色的布艺沙发,橘黄色的单椅撞色点缀,让整体空间颜色丰富且不乱。

燕兴世福-90平-现代风格-餐厅.jpg

燕兴世福90平现代风格三室两厅林凤装饰的餐厅空间比较小,设计方面让餐桌靠墙,给动线留出空间,让门厅宽敞。

燕兴世福-90平-现代风格-客卧.jpg 燕兴世福-90平-现代风格-主卧.jpg 燕兴世福-90平-现代风格-主卧二.jpg

【主卧室说明】背景墙以业主喜欢的灰色调为主,用软装,配饰搭配颜色,配合现代感强的床品和床头柜,整体感觉完整,不突兀。【次卧室说明】次卧室布置成榻榻米,给原本收纳空间不太足屋子增加了收纳功能,休息、办公空间得到双向满足。充足利用了客卧的空间。

燕兴世福-90平-现代风格-卫生间.jpg

燕兴世福90平现代风格三室两厅林凤装饰的卫生间定制浴室柜是整个卫生间的最大亮点,功能性强的收纳空间,在马桶左侧,也把整个卫生间空间做出了灵动的感觉

燕兴世福-90平-现代风格-厨房.jpg

燕兴世福90平现代风格三室两厅林凤装饰的中式厨房,原本厨房空间不大,冰箱还要放置其中,左侧靠墙位置做了一排扁橱柜,增加收纳空间,木色配合白色的整体橱柜搭配,让整体感觉上更舒服。

燕兴世福-90平-现代风格-平面布置图.jpg

户型图

案例设计师

林凤装饰设计师

设计师:林凤装饰设计师

从业时间:4年

设计理念:设计源于对生活的热爱,一分热爱,十分理解,百分感悟。

预约设计师

算算你家装修多少钱

报名即享丰厚赠品,品质装修

免费报价
咨询热线:400-656-9909
20190221103704574636.jpg

精品设计案例

20180612134930523248.jpg 服务号二维码.jpg