立即预约 立即预约
免费定制整装家居

免费定制整装家居

一站置家 全程无忧 一省到底
hide.png

当前位置: 首页 > 装修案例效果图 > 融创唐轩府

融创唐轩府 86平 轻奢风格效果图

收藏
案例风格 轻奢 案例户型 二居 案例面积 86平米
楼盘名称 融创唐轩府 设计师 林凤装饰设计师 案例类型 改善性住宅

设计理念:本案现代轻奢风格。整体色调以白灰为贯穿,点配钨钢的黑色,石膏线条、钨钢的线条有序的结合,亮面的地砖搭配亮面的钨钢提升空间质感,同时用墙面亚光砖加以综合,打造一个简单而舒适的家。

客厅
第1张
第2张
第3张
第4张
餐厅
第1张
卧室
第1张
第2张
卫生间
第1张
第2张
厨房
第1张
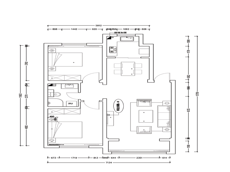
户型图
第1张
  • 案例详情

融创唐轩府86平-现代轻奢-客厅1.jpg 融创唐轩府86平-现代轻奢-客厅2.jpg 融创唐轩府86平-现代轻奢-客厅3.jpg 融创唐轩府86平-现代轻奢-首图.jpg

融创唐轩府86平两室两厅现代轻奢风格林凤装饰的客厅亚光砖与亮面钨钢的结合,砖的图案很有艺术感觉,是整个空间的亮点。

融创唐轩府86平-现代轻奢-餐厅.jpg

融创唐轩府86平两室两厅现代轻奢风格林凤装饰的餐厅顶部线条是客厅线条的延伸,暖色的装饰画很点题。

融创唐轩府86平-现代轻奢-次卧.jpg 融创唐轩府86平-现代轻奢-主卧.jpg

【主卧室说明】顶部不做吊顶,用线条装饰,干净利落,暖灰亚光的地板很符合空 间的属性;【次卧室说明】次卧于主卧一脉相承,色调以白色为主,搭配暖灰的木色。

融创唐轩府86平-现代轻奢-卫生间1.jpg 融创唐轩府86平-现代轻奢-卫生间2.jpg

融创唐轩府86平两室两厅现代轻奢风格林凤装饰的卫生间墙面地面采用灰色系做为背景,镜柜特意选了暖色系,提升空间的温馨感。

融创唐轩府86平-现代轻奢-厨房.jpg

融创唐轩府86平两室两厅现代轻奢风格林凤装饰的厨房通透玻璃的拉门将厨房与餐厅分开,保证采光也阻隔了油烟,厨房的墙砖与橱柜都采用浅色系,让厨房空间干净明快也有拉大空间的感觉。

融创唐轩府86平-现代轻奢-平面图.jpg

户型图

案例设计师

林凤装饰设计师

设计师:林凤装饰设计师

从业时间:8年

设计理念:设计是设计一种生活方式,好的房子好看也好用。

预约设计师

算算你家装修多少钱

报名即享丰厚赠品,享半价装修

免费报价
咨询热线:400-656-9909
20190221103704574636.jpg

精品设计案例

20180612134930523248.jpg 服务号二维码.jpg