立即预约 立即预约
免费定制整装家居

免费定制整装家居

一站置家 全程无忧 一省到底
hide.png

当前位置: 首页 > 装修案例效果图 > 孔雀城

孔雀城 220平 现代简约风格效果图

收藏
案例风格 现代简约 案例户型 三居 案例面积 220平米
楼盘名称 孔雀城 设计师 菅垚 案例类型 改善性住宅

设计理念:本案为现代轻奢风格设计,家庭成员是三口人,分为三层,享受都市现代的品质生活。

客厅
第1张
第2张
第3张
餐厅
第1张
卧室
第1张
卫生间
第1张
厨房
第1张
儿童房
第1张
衣帽间
第1张
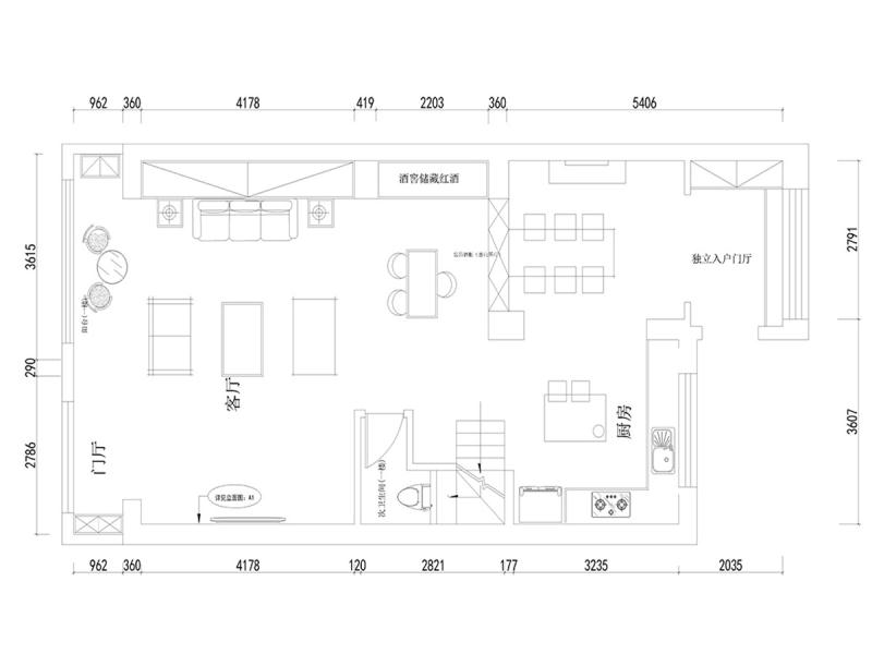
户型图
第1张
  • 案例详情

孔雀城-280平-轻奢风格-首图.jpg 孔雀城-280平-轻奢风格-客厅.jpg 孔雀城-280平-轻奢风格-主卧 (1).jpg

孔雀城220平三室两厅现代风格林凤装饰的客厅中的整体感觉以大气为主调,客厅作为家里的中心位置,在元素质感还有色调上都比较明亮。

孔雀城-280平-轻奢风格-餐厅.jpg

孔雀城220平三室两厅现代风格林凤装饰的开放式厨房与客厅相连,中间用多功能理石吧台做衔接,方便的同时的进线全屋的大气与时尚感。

孔雀城-280平-轻奢风格-主卧 (2).jpg

孔雀城220平三室两厅现代风格林凤装饰的卧室占据二楼空间的主体面积,一体化多功能主卧除了休息还有兼具休闲,宽敞的卧室兼具休闲沙发与电视和独立私人的衣帽间。三楼整体步入衣帽间,足够宽敞的储物功能方便居住的同时,更显温馨感。

孔雀城-280平-轻奢风格-卫生间.jpg

孔雀城220平三室两厅现代风格林凤装饰的客卫用墙面白色花纹瓷砖提升了质感,还设计了干湿分离,让空间发挥出最大的作用,主卫为业主设计了浴缸,能提高整体的舒适性。

孔雀城-280平-轻奢风格-厨房.jpg

孔雀城220平三室两厅现代风格林凤装饰的厨房

孔雀城-280平-轻奢风格-女儿房.jpg

孔雀城220平三室两厅现代风格林凤装饰的女儿房

孔雀城-280平-轻奢风格-衣帽间.jpg

孔雀城220平三室两厅现代风格林凤装饰的衣帽间

平面图.jpg

户型图

案例设计师

菅垚

设计师:菅垚

从业时间:11年

设计理念:没有最好的方案,只有最适合的方案

预约设计师

算算你家装修多少钱

报名即享丰厚赠品,品质装修

免费报价
咨询热线:400-656-9909
20190221103704574636.jpg

精品设计案例

20180612134930523248.jpg 服务号二维码.jpg