立即预约 立即预约
免费定制整装家居

免费定制整装家居

一站置家 全程无忧 一省到底
hide.png

当前位置: 首页 > 装修案例效果图 > 香格蔚蓝

香格蔚蓝 440平 欧式风格效果图

收藏
案例风格 欧式 案例户型 四居 案例面积 440平米
楼盘名称 香格蔚蓝 设计师 林凤装饰设计 案例类型 改善性住宅

设计理念:本案设计整体以欧式为主体风格,追求华丽,古典的韵味,结合了古罗马时期的建筑外形,浓烈的色彩,直追奢华。

客厅
第1张
第2张
第3张
餐厅
第1张
卧室
第1张
卫生间
第1张
厨房
第1张
儿童房
第1张
门厅
第1张
户型图
第1张
  • 案例详情

香格蔚蓝-440-欧式古典-客厅.jpg 香格蔚蓝-440-欧式古典-客厅1.jpg 香格蔚蓝-440-欧式古典-首图.jpg

香格蔚蓝440平别墅欧式古典风格林凤装饰的客厅为跃层式,举架4.8米,考虑到墙体高度,选择了硬性装饰材料,天然石材。电视墙考虑到古建筑元素,石材做出了罗马柱的形式。沙发墙采用石材和胡桃色墙板相结合效果,地面的拼花,棚顶的造型,柔软装的呼应,使整个空间高贵华丽。

香格蔚蓝-440-欧式古典-餐厅.jpg

香格蔚蓝440平别墅欧式古典风格林凤装饰的餐厅为跃层的上半部,与客厅相通透,相结合,所以背景也采用石材为主材质,配合地面的拼花,棚面的造型,让整个空间更灵动。

香格蔚蓝-440-欧式古典-卧室.jpg

香格蔚蓝440平别墅欧式古典风格林凤装饰的主卧室硬装主要以灰色为主,软装以暖手为主,冷暖对比,空间更加有层次。

香格蔚蓝-440-欧式古典-卫生间.jpg

香格蔚蓝440平别墅欧式古典风格林凤装饰的卫生间房主比较喜欢分割式卫生间,所以在空间上多采用半封闭式,瓷砖颜色采用冷灰色瓷砖,配合了石材的边线,胡桃色卫浴柜,略显华丽,整洁。

香格蔚蓝-440-欧式古典-厨房.jpg

香格蔚蓝440平别墅欧式古典风格林凤装饰的厨房为中厨与西厨相结合形式,橱柜为胡桃实木,配中岛台,使之空间更有连接性。

香格蔚蓝-440-欧式古典-儿女卧室.jpg

香格蔚蓝440平别墅欧式古典风格林凤装饰的儿童房

香格蔚蓝-440-欧式古典-门厅.jpg

香格蔚蓝440平别墅欧式古典风格林凤装饰的玄关

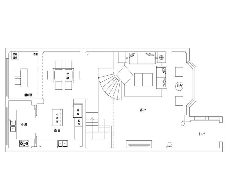
香格蔚蓝-440-欧式古典-户型图.jpg

户型图

案例设计师

林凤装饰设计

设计师:林凤装饰设计

从业时间:9年

设计理念:追求艺术带给生活最美的体验

预约设计师

算算你家装修多少钱

报名即享丰厚赠品,享半价装修

免费报价
咨询热线:400-656-9909
20190221103704574636.jpg

精品设计案例

20180612134930523248.jpg 服务号二维码.jpg