立即预约 立即预约
免费定制整装家居

免费定制整装家居

一站置家 全程无忧 一省到底
hide.png

当前位置: 首页 > 装修案例效果图 > 五矿世家金城

五矿世家金城 125平 现代简约风格效果图

收藏
案例风格 现代简约 案例户型 三居 案例面积 125平米
楼盘名称 五矿世家金城 设计师 魏东超 案例类型 改善性住宅

设计理念:本案以现代元素为主,采用理石质感的石材,搭配纯色木质定制类家具,配以亚麻质感的软装饰品,打造一种现代时尚简洁的居住空间。

客厅
第1张
餐厅
第1张
卧室
第1张
第2张
第3张
卫生间
第1张
厨房
第1张
门厅
第1张
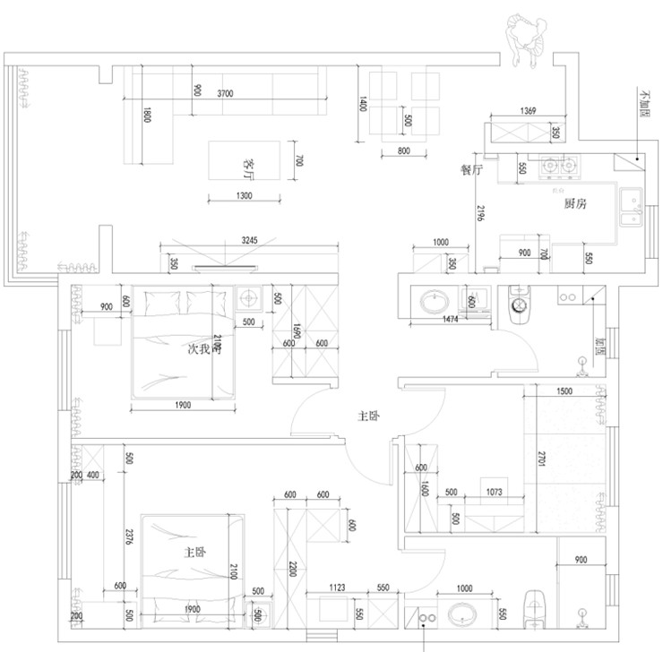
户型图
第1张
  • 案例详情

五矿世家金城-125平-现代风格-首图.jpg

五矿世家金城125平三室两厅现代风格林凤装饰的客厅以简洁的手法设计,简单的吊顶线条,搭配浅灰色理石纹理瓷砖,墙壁局部进行了色块的点缀,丰富了层次的变化,背景墙通过装饰类的柜子对平时的喜好饰物进行简单收纳展示,家具采用了当下流行的现代极简风格家具,简洁大气。

五矿世家金城-125平-现代风格-餐厅.jpg

五矿世家金城125平三室两厅现代风格林凤装饰的餐厅位置比较小,所以采用了简单线条的家具,空间节省,也不会显得杂乱,理石面的餐台更便于日常生活中打理,餐灯取餐桌中心,把区域进行了合理的划分。

五矿世家金城-125平-现代风格-北卧.jpg 五矿世家金城-125平-现代风格-主卧1.jpg 五矿世家金城-125平-现代风格-主卧.jpg

五矿世家金城125平三室两厅现代风格林凤装饰的主卧室功能性非常齐全,飘窗的设计是非常实用的,兼具功能与收纳一体,主卧也有自己的衣帽间设计,更大的收纳量,满足日常物品的储藏,家里更整洁,床头采用了跟客厅同样的色块方式进行点缀,增加了一丝活力,床以舒适的布艺材质为主,简单舒适。

五矿世家金城-125平-现代风格-主卫.jpg

五矿世家金城125平三室两厅现代风格林凤装饰的洗手间采用了柔光砖的设计,上下两版不同的颜色,层次更清晰,淋浴区设置了干湿分离的设计,洗手台根据空间尽可能选用了大的,储物量更多,空间更整洁。

五矿世家金城-125平-现代风格-厨房.jpg

五矿世家金城125平三室两厅现代风格林凤装饰的厨房采用的是敞开式厨房,视觉空间更大,厨房更注重功能性,面板都采用了平面设计,便于打理,色调采用了下深上浅的设计,让本身很小的厨房显得不那么局促,功能性的设置也大大的满足了客户日常使用。

五矿世家金城-125平-现代风格-玄关.jpg

五矿世家金城125平三室两厅现代风格林凤装饰的玄关

五矿世家金城-125平-现代风格-平面图.jpg

户型图

案例设计师

魏东超

设计师:魏东超

从业时间:14年

设计理念:在有限的空间里创造无限的可能

预约设计师

算算你家装修多少钱

报名即享丰厚赠品,品质装修

免费报价
咨询热线:400-656-9909
20190221103704574636.jpg

精品设计案例

20180612134930523248.jpg 服务号二维码.jpg