立即预约 立即预约
免费定制整装家居

免费定制整装家居

一站置家 全程无忧 一省到底
hide.png

当前位置: 首页 > 装修案例效果图 > 龙湖天宸原著

龙湖天宸原著 350平 轻奢风格效果图

收藏
案例风格 轻奢 案例户型 别墅 案例面积 350平米
楼盘名称 龙湖天宸原著 设计师 杨达 案例类型 改善性住宅

设计理念:此套别墅设计方案为现代轻奢风格,主体设计是以现代装饰与软装搭配为主。

客厅
第1张
第2张
餐厅
第1张
卧室
第1张
卫生间
第1张
第2张
厨房
第1张
书房
第1张
儿童房
第1张
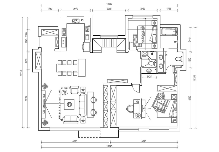
户型图
第1张
  • 案例详情

龙湖天宸原著-350平-现代轻奢风格-客厅.jpg 龙湖天宸原著-350平-现代轻奢风格-首图.jpg

龙湖天宸原著350平别墅现代轻奢风格林凤装饰的客厅是一家人的主要活动的空间,所以采用3+2+1座位的沙发,地面采用灰色800*800的地砖,棚面天花是石膏板造型棚,沙发背面是全屋定制的酒柜整体软装与硬装搭配在一起凸显现代轻奢的设计风格。

龙湖天宸原著-350平-现代轻奢风格-餐厅.jpg

龙湖天宸原著350平别墅现代轻奢风格林凤装饰的餐厅摆放的是六人位的餐桌,满足了一家人共同进餐的需求,餐桌与客厅沙发是同色系材质也是最为流行的家具搭配。

龙湖天宸原著-350平-现代轻奢风格-主卧.jpg

龙湖天宸原著350平别墅现代轻奢风格林凤装饰的主卧摆放1.9米×2.1米现代双人床,床头采用半包硬包护墙板虚光灯带,全屋定制超大空间容量的衣柜。

龙湖天宸原著-350平-现代轻奢风格-客卫.jpg 龙湖天宸原著-350平-现代轻奢风格-主卫.jpg

龙湖天宸原著350平别墅现代轻奢风格林凤装饰的卫生间采用定制的浴室柜,墙砖与地砖采用同纹理灰色的仿大理石瓷砖,干湿分离的淋浴和浴缸。

龙湖天宸原著-350平-现代轻奢风格-厨房.jpg

龙湖天宸原著350平别墅现代轻奢风格林凤装饰的厨房是开放式厨房采用的是u型橱柜,镶嵌蒸箱和烤箱超大台面可摆放的物也更多,操作也更方便。

龙湖天宸原著-350平-现代轻奢风格-书房.jpg

龙湖天宸原著350平别墅现代轻奢风格林凤装饰的书房

龙湖天宸原著-350平-现代轻奢风格-儿童房.jpg

龙湖天宸原著350平别墅现代轻奢风格林凤装饰的儿童房

龙湖天宸原著-350平-现代轻奢风格-平面图.jpg

户型图

案例设计师

杨达

设计师:杨达

从业时间:10年

设计理念:精雕细琢,返璞归真。

预约设计师

算算你家装修多少钱

报名即享丰厚赠品,享半价装修

免费报价
咨询热线:400-656-9909
20190221103704574636.jpg

精品设计案例

20180612134930523248.jpg 服务号二维码.jpg