立即预约 立即预约
免费定制整装家居

免费定制整装家居

一站置家 全程无忧 一省到底
hide.png

当前位置: 首页 > 装修案例效果图 > 浦江御品

浦江御品 150平 轻奢风格效果图

收藏
案例风格 轻奢 案例户型 三居 案例面积 150平米
楼盘名称 浦江御品 设计师 孙安强 案例类型 改善性住宅

设计理念:本案设计风格为现代简约风格,屋内采用大量硬包护墙板搭配原木色更显现代简约。

客厅
第1张
第2张
第3张
餐厅
第1张
卧室
第1张
第2张
卫生间
第1张
第2张
厨房
第1张
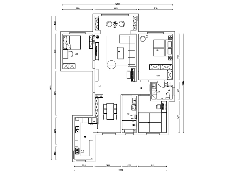
户型图
第1张
  • 案例详情

浦江御品-150平-轻奢风格-背景墙.jpg 浦江御品-150平-轻奢风格-客厅.jpg 浦江御品-150平-轻奢风格-首图.jpg

浦江御品150平三室两厅轻奢风格林凤装饰的客厅采用的是暖灰色的地砖与原木色的护墙板,背景墙采用隐藏门设计,凸显的客厅开阔舒适。

浦江御品-150平-轻奢风格-餐厅.jpg

浦江御品150平三室两厅轻奢风格林凤装饰的餐厅摆放的是四人位餐桌,侧面是全屋定制的酒柜采用的玻璃门 ,与餐厅相互搭配。

浦江御品-150平-轻奢风格-主卧.jpg 浦江御品-150平-轻奢风格-次卧.jpg

浦江御品150平三室两厅轻奢风格林凤装饰的主卧摆放1.9米×2.1米现代双人床,床头采用硬包护墙板与壁灯,点缀色为热力橙色。

浦江御品-150平-轻奢风格-次卫.jpg 浦江御品-150平-轻奢风格-主卫生间.jpg

浦江御品150平三室两厅轻奢风格林凤装饰的主卫生间采用定制的浴室柜,业主要求尽量增加卫生间储物能力,所以定制了大容量的储物柜。

浦江御品-150平-轻奢风格-厨房.jpg

浦江御品150平三室两厅轻奢风格林凤装饰的厨房采用的是u型橱柜空间利用性达到最大 ,超大的台面可摆放的物也更多,AB版的橱柜灰色与白色的搭配也是当今最流行的搭配。

浦江御品-150平-轻奢风格-平面图.jpg

户型图

案例设计师

孙安强

设计师:孙安强

从业时间:10年

设计理念:生活是创意的来源,创意源于文化,创意源于自己

预约设计师

算算你家装修多少钱

报名即享丰厚赠品,享半价装修

免费报价
咨询热线:400-656-9909
20190221103704574636.jpg

精品设计案例

20180612134930523248.jpg 服务号二维码.jpg