立即预约 立即预约
免费定制整装家居

免费定制整装家居

一站置家 全程无忧 一省到底
hide.png

当前位置: 首页 > 装修案例效果图 > 阳光100

阳光100 140平 现代简约风格效果图

收藏
案例风格 现代简约 案例户型 三居 案例面积 140平米
楼盘名称 阳光100 设计师 陆旭 案例类型 改善性住宅

设计理念:本案采用简约现代风格,利用乳胶漆变颜色与全屋定制家具相互融合 使140平米的户型完美呈现后现代的特色

客厅
第1张
第2张
餐厅
第1张
卧室
第1张
第2张
卫生间
第1张
厨房
第1张
书房
第1张
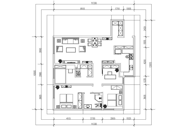
户型图
第1张
  • 案例详情

阳光100-140平-现代风格-客厅1.jpg 阳光100-140平-现代风格-客厅2.jpg

阳光100现代风格140平三室两厅林凤装饰的客厅通过对墙面颜色的改变和定制类家具的结合,呈现了一种安静,简约 的生活状态,满足了客户对客厅干净整洁的要求,并且有大量的储藏空间可以存放更多的杂物

阳光100-140平-现代风格-餐厅.jpg

阳光100现代风格140平三室两厅林凤装饰的餐厅没有一个独立的空间,是属于跟客厅结合成一体的,利用折叠餐桌的特点,解决了后期家里就餐人多的烦恼,并且在日常生活中并不占用更多的空间。

阳光100-140平-现代风格-卧室1.jpg 阳光100-140平-现代风格-卧室2.jpg

阳光100现代风格140平三室两厅林凤装饰的卧室主要通过软装的结合让卧室完美呈现欧式风格。根据不同卧室的功能需求,采用了不同材质的柜门和颜色,地面地板,让卧室显得更加温馨

阳光100-140平-现代风格-卫生间.jpg

阳光100现代风格140平三室两厅林凤装饰的大面积的卫生间,做了双盆的设计和洗衣机结合在一起,让空间显得干净立正,淋浴区采用了干湿分离,不会在洗完澡以后再进行整个卫生间的打理

阳光100-140平-现代风格-厨房.jpg

阳光100现代风格140平三室两厅林凤装饰的厨房通过上下柜颜色反差让做饭充满了乐趣!材质上采用灰白两色的烤漆材质,让厨房更显明亮,大方,并且更好打理

阳光100-140平-现代风格-书房3.jpg

阳光100现代风格140平三室两厅林凤装饰的书房

平面图.jpg

案例设计师

陆旭

设计师:陆旭

从业时间:12年

设计理念:懂生活 爱生活 享受生活 才能设计好一个每天生活的地方

预约设计师

算算你家装修多少钱

报名即享丰厚赠品,品质装修

免费报价
咨询热线:400-656-9909
20190221103704574636.jpg

精品设计案例

20180612134930523248.jpg 服务号二维码.jpg