立即预约 立即预约
免费定制整装家居

免费定制整装家居

一站置家 全程无忧 一省到底
hide.png

当前位置: 首页 > 装修案例效果图 > 浦江御景湾

浦江御景湾 80平 现代简约风格效果图

收藏
案例风格 现代简约 案例户型 一居 案例面积 80平米
楼盘名称 浦江御景湾 设计师 王松 案例类型 改善性住宅

设计理念:本设计方案以现代风格为主,主色系为黑白灰,材质上选择了原木和灰色布艺,为客户打造一个温馨的空间。

客厅
第1张
第2张
第3张
第4张
卫生间
第1张
厨房
第1张
第2张
门厅
第1张
过廊
第1张
第2张
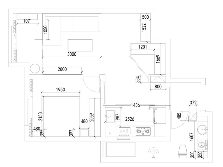
户型图
第1张
  • 案例详情

浦江御景湾-80平-现代风格-客厅 (2).jpg 浦江御景湾-80平-现代风格-客厅 (3).jpg 浦江御景湾-80平-现代风格-客厅.jpg 浦江御景湾-80平-现代风格-首图.jpg

浦江御景湾80平一室两厅现代风格林凤装饰的客户对客厅的依赖性很高,平时喜欢下班一个人在家看看电影,所以没有选择做电视背景墙而是选择投影仪,在阳台部分选择了做一个地台,偶尔可以在地台上放空自己。

浦江御景湾-80平-现代风格-卫生间.jpg

浦江御景湾80平一室两厅现代风格林凤装饰的卫生间的设计上,考虑到业主化妆品东西太多,所以手盆选择了定制的通长的柜子,增加的储物的面积,在原本阳台的地方给客户设计了浴缸区域。增加了享受生活的乐趣。

浦江御景湾-80平-现代风格-厨房.jpg 浦江御景湾-80平-现代风格-西厨.jpg

浦江御景湾80平一室两厅现代风格林凤装饰的厨房在瓷砖选择了网红的小白瓷砖 做的黑色美缝,橱柜的颜色选择原木的颜色,整个空间看着清新了。

浦江御景湾-80平-现代风格-门厅.jpg

浦江御景湾80平一室两厅现代风格林凤装饰的玄关

浦江御景湾-80平-现代风格-过廊 3.jpg 浦江御景湾-80平-现代风格-过廊4.jpg

浦江御景湾80平一室两厅现代风格林凤装饰的过廊

浦江御景湾-80平-现代风格-平面图.jpg

户型图

案例设计师

王松

设计师:王松

从业时间:10年

设计理念:品味生活,从家开始

预约设计师

算算你家装修多少钱

报名即享丰厚赠品,享半价装修

免费报价
咨询热线:400-656-9909
20190221103704574636.jpg

精品设计案例

20180612134930523248.jpg 服务号二维码.jpg