立即预约 立即预约
免费定制整装家居

免费定制整装家居

一站置家 全程无忧 一省到底
hide.png

当前位置: 首页 > 装修案例效果图 > 融创沈阳府

融创沈阳府 125平 现代简约风格效果图

收藏
案例风格 现代简约 案例户型 三居 案例面积 125平米
楼盘名称 融创沈阳府 设计师 林凤设计师 案例类型 改善性住宅

设计理念:房子的设计是为了满足业主对生活的需求与喜爱的需求,解决业主的困惑。

客厅
第1张
第2张
第3张
餐厅
第1张
卧室
第1张
第2张
卫生间
第1张
厨房
第1张
书房
第1张
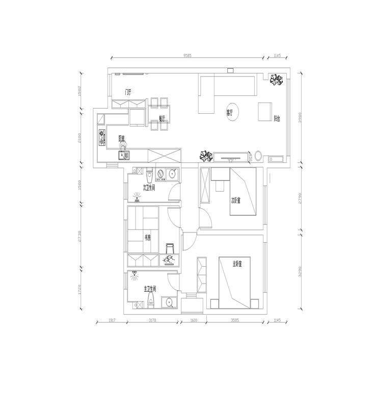
户型图
第1张
  • 案例详情

融创沈阳府-125平-现代风格-客卫.jpg 融创沈阳府-125平-现代风格-客厅2.jpg 融创沈阳府-125平-现代风格-客厅1.jpg

融创沈阳府125平三室两厅现代风格林凤装饰的客厅深色木饰面与白色大理石的设计,整体比较有质感,层次分明,餐厅一整面的储物柜,解决了业主对收纳的需求。整体客餐厅简洁大气。

融创沈阳府-125平-现代风格-餐厅.jpg

融创沈阳府125平三室两厅现代风格林凤装饰的餐厅

融创沈阳府-125平-现代风格-次卧室.jpg 融创沈阳府-125平-现代风格-主卧室.jpg

融创沈阳府125平三室两厅现代风格林凤装饰的主卧色调比较统一,没有用过多的亮色,整体空间比较简洁大气。

融创沈阳府-125平-现代风格-主卫.jpg

融创沈阳府125平三室两厅现代风格林凤装饰的卫生间选用灰色调理石纹瓷砖,配上白色洁具,简洁又不失高档。

融创沈阳府-125平-现代风格-厨房.jpg

融创沈阳府125平三室两厅现代风格林凤装饰的厨房白色和深色石文橱柜与爵士白瓷砖完美结合,让厨房空间变的大了不少,又能与客厅完美的融合。

融创沈阳府-125平-现代风格-书房.jpg

融创沈阳府125平三室两厅现代风格林凤装饰的书房

布局图.jpg

户型图

案例设计师

林凤设计师

设计师:林凤设计师

从业时间:8年

设计理念:艺术是生活的升华,设计是艺术的呈现。

预约设计师

算算你家装修多少钱

报名即享丰厚赠品,享半价装修

免费报价
咨询热线:400-656-9909
20190221103704574636.jpg

精品设计案例

20180612134930523248.jpg 服务号二维码.jpg