立即预约 立即预约
免费定制整装家居

免费定制整装家居

一站置家 全程无忧 一省到底
hide.png

当前位置: 首页 > 装修案例效果图 > 美的城

美的城 130平 现代简约风格效果图

收藏
案例风格 现代简约 案例户型 三居 案例面积 130平米
楼盘名称 美的城 设计师 高阳 案例类型 改善性住宅

设计理念:本案整体色彩运用的比较经典简单,以黑白色为主,亮色为辅。木质墙面,理石墙面,体现品质。

客厅
第1张
第2张
第3张
第4张
餐厅
第1张
第2张
卧室
第1张
第2张
卫生间
第1张
门厅
第1张
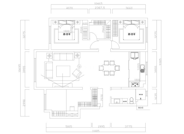
户型图
第1张
  • 案例详情

美的城-130平米-现代风格-背景墙.jpg 美的城-130平米-现代风格-客厅.jpg 美的城-130平米-现代风格-客厅1.jpg 美的城-130平米-现代风格-沙发.jpg

美的城130平三室两厅现代风格林凤装饰的客厅的电视背景墙采用了生态木饰面板与理石搭配,线条的装饰增加了设计感。另外,在软装上加了些亮色搭配,让原本内敛稳重的客厅,一下子生动活泼了起来。客厅的背景墙用木板作为装饰,加上用线性灯光的设计,让空间变得很有质感。

美的城-130平米-现代风格-餐厅2.jpg 美的城-130平米-现代风格-餐厅.jpg

美的城130平三室两厅现代风格林凤装饰的餐厅

美的城-130平米-现代风格-榻榻米.jpg 美的城-130平米-现代风格-卧室.jpg

美的城130平三室两厅现代风格林凤装饰的卧室用木板和硬包装饰,金属线条,体现轻奢感觉,最特是床头灯的设计,有设计感.

美的城-130平米-现代风格-卫生间.jpg

美的城130平三室两厅现代风格林凤装饰的卫生间

美的城-130平米-现代风格-门厅.jpg

美的城130平三室两厅现代风格林凤装饰的玄关

美的城-130平米-现代风格-平面图.jpg

户型图

案例设计师

高阳

设计师:高阳

从业时间:11年

设计理念:有限空间、无限设计。

预约设计师

算算你家装修多少钱

报名即享丰厚赠品,享半价装修

免费报价
咨询热线:400-656-9909
20190221103704574636.jpg

精品设计案例

20180612134930523248.jpg 服务号二维码.jpg