立即预约 立即预约
免费定制整装家居

免费定制整装家居

一站置家 全程无忧 一省到底
hide.png

当前位置: 首页 > 装修案例效果图 > 华润二十四城

华润二十四城 125平 现代简约风格效果图

收藏
案例风格 现代简约 案例户型 三居 案例面积 125平米
楼盘名称 华润二十四城 设计师 林凤设计师 案例类型 改善性住宅

设计理念:本案为现代简约风格,本着简约却不简单的设计理念,空间上少量留白,给房子的主人一些发展空间,软装饰品偏暖,营造温馨意境。

客厅
第1张
第2张
餐厅
第1张
卧室
第1张
卫生间
第1张
厨房
第1张
儿童房
第1张
衣帽间
第1张
门厅
第1张
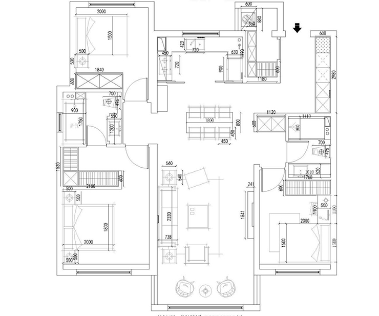
户型图
第1张
华润二十四城-125平-现代简约-客厅.jpg 华润二十四城-125平-现代简约-首图.jpg

华润二十四城125平三室两厅现代风格林凤装饰的业主不想要繁杂的电视背景墙,只简单做了金属边框装饰,区分了区域,窗帘和软装饰品橘色呼应,时尚又温馨

华润二十四城-125平-现代简约-餐厅.jpg

华润二十四城125平三室两厅现代风格林凤装饰的餐厅延续客厅造型,橙色的绒布餐椅为空间增添质感,六人台餐桌满足日常使用,美观又大方

华润二十四城-125平-现代简约-主卧.jpg

华润二十四城125平三室两厅现代风格林凤装饰的主卧采用皮床,干净立正上档次,灰色壁纸提升空间质感,白色柜子显得衣帽间不烦闷

华润二十四城-125平-现代简约-卫生间.jpg

华润二十四城125平三室两厅现代风格林凤装饰的卫生间AB版墙砖,双浴室柜便捷美观,台面空间大,下柜镂空,一字浴屏空间敞亮宽阔

华润二十四城-125平-现代简约-厨房.jpg

华润二十四城125平三室两厅现代风格林凤装饰的厨房采用当下较流行的岩板橱柜,U型空间,四扇大拉门,通透美观,搭配爵士白墙砖,高级好打理

华润二十四城-125平-现代简约-儿童房.jpg

华润二十四城125平三室两厅现代风格林凤装饰的儿童房

华润二十四城-125平-现代简约-衣帽间.jpg

华润二十四城125平三室两厅现代风格林凤装饰的衣帽间

华润二十四城-125平-现代简约-门厅.jpg

华润二十四城125平三室两厅现代风格林凤装饰的玄关

华润二十四城-125平-现代简约-平面图.jpg

户型图

案例设计师

林凤设计师

设计师:林凤设计师

从业时间:5年

设计理念:为生活而设计,设计源于懂生活

预约设计师

算算你家装修多少钱

报名即享丰厚赠品,享半价装修

免费报价
咨询热线:400-656-9909
20190221103704574636.jpg

精品设计案例

20180612134930523248.jpg 服务号二维码.jpg