立即预约 立即预约
免费定制整装家居

免费定制整装家居

一站置家 全程无忧 一省到底
hide.png

当前位置: 首页 > 装修案例效果图 > 首创国际城

首创国际城 118平 现代简约风格效果图

收藏
案例风格 现代简约 案例户型 三居 案例面积 118平米
楼盘名称 首创国际城 设计师 丁强 案例类型 改善性住宅

设计理念:本案是以现代风格为主,以灰色,白色,咖色,胡桃色为主要色调!彰显现代风格的多变性,现代风格主要运用颜色与线条结合的方式来凸出现代感。

客厅
第1张
第2张
第3张
第4张
餐厅
第1张
卧室
第1张
卫生间
第1张
厨房
第1张
户型图
第1张
  • 案例详情

首创国际城-118平-现代风格-电视墙.jpg 首创国际城-118平-现代风格-客厅整体.jpg 首创国际城-118平-现代风格-沙发.jpg 首创国际城-118平-现代风格-首图.jpg

首创国际城118平三室两厅现代风格林凤装饰的客厅采用的是灰色大理石纹理的瓷砖,客厅采用回字型吊顶,内侧藏虚光灯槽。电视背景墙是用石膏板做错缝造型,里面贴壁布。

首创国际城-118平-现代风格-餐厅.jpg

首创国际城118平三室两厅现代风格林凤装饰的餐厅是跟厨房相连,餐厅墙比较短,所以餐厅空间没有什么巧妙的设计,只是通过餐桌餐椅的颜色和墙画做呼应。

首创国际城-118平-现代风格-主卧室.jpg

首创国际城118平三室两厅现代风格林凤装饰的主卧室空间还是可以的,主卧室带了一个大的飘窗,飘窗房主不想打掉,所以飘窗上面用大理石铺贴的方式来做,后期飘窗可以作为一个休闲区使用,主卧室整体墙面采用白色乳胶漆,只有床头一面采用乳胶漆调色。

首创国际城-118平-现代风格-卫生间.jpg

首创国际城118平三室两厅现代风格林凤装饰的卫生间的墙砖采用灰色大理石纹理的瓷砖,规格采用300*600正向铺贴,由于卫生间里带窗户,所以在墙砖的颜色使用上比较大胆,深灰色的大理石纹理瓷砖铺出来整体效果非常好。

首创国际城-118平-现代风格-厨房.jpg

首创国际城118平三室两厅现代风格林凤装饰的厨房的橱柜采用上下AB两版颜色做搭配,整体的板材为吸塑纯色,门型用的是简单线条,由于橱柜得下柜颜色比较深,所以在墙砖采用上用的是比较浅色的,这样看起来比较有层次感

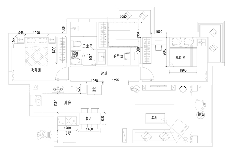
首创国际城-118平-现代风格-平面图.jpg

户型图

案例设计师

丁强

设计师:丁强

从业时间:8年

设计理念:用心观察生活,感悟人生真谛,让设计与生活互动

预约设计师

算算你家装修多少钱

报名即享丰厚赠品,享半价装修

免费报价
咨询热线:400-656-9909
20190221103704574636.jpg

精品设计案例

20180612134930523248.jpg 服务号二维码.jpg