立即预约 立即预约
免费定制整装家居

免费定制整装家居

一站置家 全程无忧 一省到底
hide.png

当前位置: 首页 > 装修案例效果图 > 碧桂园银河城

碧桂园银河城 130平 现代简约风格效果图

收藏
案例风格 现代简约 案例户型 三居 案例面积 130平米
楼盘名称 碧桂园银河城 设计师 林凤装饰全案设计师 案例类型 改善性住宅

设计理念:本案是以现代轻奢为主设计,在时代的背景下理石和镀铬的金属赋予了新的含义。是原本平谈无奇的现代风格多了一些高贵和典雅。

客厅
第1张
第2张
第3张
第4张
第5张
餐厅
第1张
卧室
第1张
卫生间
第1张
厨房
第1张
门厅
第1张
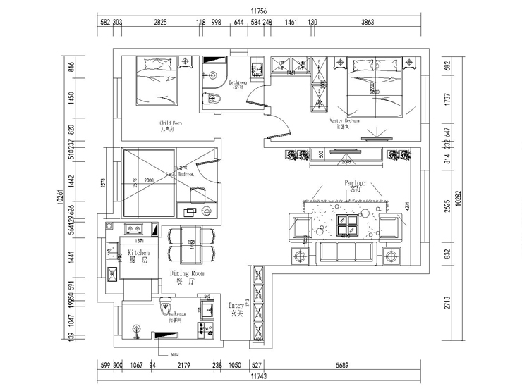
户型图
第1张
  • 案例详情

碧桂园银河城-星语苑-130平-现代风格-客厅.jpg 碧桂园银河城-星语苑-130平-现代风格-客厅1.jpg 碧桂园银河城-星语苑-130平-现代风格-客厅2.jpg 碧桂园银河城-星语苑-130平-现代风格-客厅3.jpg 碧桂园银河城-星语苑-130平-现代风格-首图.jpg

碧桂园银河城130平三室两厅现代风格林凤装饰的客厅在理石与金属的运用,还要更多考虑细节上的处理。大板砖的电视墙纹理真实自然在镀铬装饰条衬托下简约而不失大气。

碧桂园银河城-星语苑-130平-现代风格-餐厅.jpg

碧桂园银河城130平三室两厅现代风格林凤装饰的餐厅采用回型吊顶的设计手法。在形态上做到一致镀铬装饰条也是相辅相成的,四人台餐桌合理分配用空间更加合理,在灯光的映衬下就餐时幸福感满满。

碧桂园银河城-星语苑-130平-现代风格-卧室.jpg

碧桂园银河城130平三室两厅现代风格林凤装饰的卧室家的体现,生活中重要的组成,也是我们的心灵之地。暖灰色的床头硬包设计简洁大方,线条流畅,富有时尚气息,两侧的床头柜和两盏简单的垂灯充分体现主人的生活的态度。

碧桂园银河城-星语苑-130平-现代风格-卫生间.jpg

碧桂园银河城130平三室两厅现代风格林凤装饰的卫生间选择爵士白的瓷砖上墙,干净整洁搭配黑橡木的洗漱柜,就像黑色的珍珠一样闪耀。干湿分区的设计也让卫生间更加干净整洁。

碧桂园银河城-星语苑-130平-现代风格-厨房.jpg

碧桂园银河城130平三室两厅现代风格林凤装饰的厨房以亮灰色为主,简洁立体大方,色彩方面沉稳大气,上浅下深柜门搭配,体现出主人对生活的态度。

碧桂园银河城-星语苑-130平-现代风格-门厅.jpg

碧桂园银河城130平三室两厅现代风格林凤装饰的玄关

碧桂园银河城-星语苑-130平-现代风格-平面图.jpg

户型图

案例设计师

林凤装饰全案设计师

设计师:林凤装饰全案设计师

从业时间:8年

设计理念:在设计中体会生活的真谛。在生活中提炼设计的精髓。

预约设计师

算算你家装修多少钱

报名即享丰厚赠品,享半价装修

免费报价
咨询热线:400-656-9909
20190221103704574636.jpg

精品设计案例

20180612134930523248.jpg 服务号二维码.jpg