立即预约 立即预约
免费定制整装家居

免费定制整装家居

一站置家 全程无忧 一省到底
hide.png

当前位置: 首页 > 装修案例效果图 > 美的城

美的城 140平 现代简约风格效果图

收藏
案例风格 现代简约 案例户型 三居 案例面积 140平米
楼盘名称 美的城 设计师 林凤设计师 案例类型 改善性住宅

设计理念:客户比较喜欢灰色,装修方面又不想弄的太复杂,所以最终定在了现代风格,简单又不失大气。

客厅
第1张
第2张
第3张
第4张
餐厅
第1张
第2张
卧室
第1张
厨房
第1张
儿童房
第1张
第2张
户型图
第1张
  • 案例详情

美的城-140-现代风格-客厅1.jpg 美的城-140-现代风格-客厅2.jpg 美的城-140-现代风格-客厅3.jpg 美的城-140-现代风格-首图.jpg

美的城140平三室两厅现代风格林凤装饰的客厅的电视背景墙采用大理石与金属条结合的设计,以大理石为主,金属条为辅,同时电视背景墙的金属条与吊顶的金属条相称,使客厅的整个空间更大气。

美的城-140-现代风格-餐厅1.jpg 美的城-140-现代风格-餐厅2.jpg

美的城140平三室两厅现代风格林凤装饰的餐厅搭配四人位长桌和灰色与橙色混搭的餐椅,灰色的餐椅与房间的高级灰达成统一,橙色餐椅属于点缀色,明亮的点缀色在空间里很容易营造出时尚感,使整个空间十分鲜明,富有活力。

美的城-140-现代风格-主卧.jpg

美的城140平三室两厅现代风格林凤装饰的主卧的床头背景墙采用的是深灰色的软包设计。其他的材质大多数以灰色为主,抱枕的颜色作为点缀色,提升整个卧室的亮度。灯光是暖黄色的,暖黄色的灯光可以提高主人的睡眠质量,使心情放松。

美的城-140-现代风格-厨房.jpg

美的城140平三室两厅现代风格林凤装饰的厨房为“U”型厨房,墙面为浅灰色墙砖,橱柜为深色的柜体,这样浅砖深柜的搭配能够打造出很好的视觉效果。

美的城-140-现代风格-儿童房1.jpg 美的城-140-现代风格-儿童房2.jpg

美的城140平三室两厅现代风格林凤装饰的儿童房

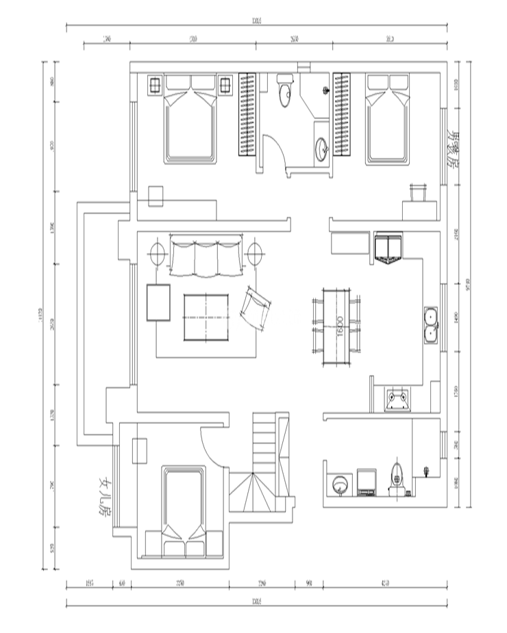
美的城-140-现代风格-平面图.png

户型图

案例设计师

林凤设计师

设计师:林凤设计师

从业时间:7年

设计理念:以人为本,用心设计,打造最适合你个性空间

预约设计师

算算你家装修多少钱

报名即享丰厚赠品,品质装修

免费报价
咨询热线:400-656-9909
20190221103704574636.jpg

精品设计案例

20180612134930523248.jpg 服务号二维码.jpg