立即预约
免费定制整装家居
一站置家 全程无忧 一省到底
设计理念:黑白灰主义是对现代主义的纯理性和功能主义的反叛,在黑白灰风格的设计中强调以人为本的设计原则,强调人在技术中的主导地位,更加注重人性化和自由化。
案例详情
华润长安里145平四室两厅现代风格林凤装饰的客厅电视背景墙因为有卧室的门口,所以在背景墙设计时,考虑空间的整体性,采用隐形门设计,为AB版灰黑色壁纸做色彩搭配,沙发背景墙采用1200*2400大地砖加黑钢金属条做设计,棚顶造型为石膏板边棚,与背景墙相互呼应。
华润长安里145平四室两厅现代风格林凤装饰的卧室家的体现,生活中重要的组成部分,也是我们的心灵之地。布艺的床头设计简洁大方,线条流畅,富有时尚气息,衣柜选择黑色双饰面带金属线条设计,整体空间闲适,时尚的新生活理念
华润长安里145平四室两厅现代风格林凤装饰的卫生间是一个追求舒适的地方,整个卫生间墙地砖铺贴了同一种瓷砖来达到个性通透舒适的感觉。整体色调以简洁大方为主。
华润长安里145平四室两厅现代风格林凤装饰的厨房大胆采用灰色的瓷砖搭配黑色的美缝剂来凸显灰色系的沉稳大气。金属质感的橱柜材质和墙砖在色彩的搭配上则是本案的重点
华润长安里145平四室两厅现代风格林凤装饰的书房
华润长安里145平四室两厅现代风格林凤装饰的儿童房
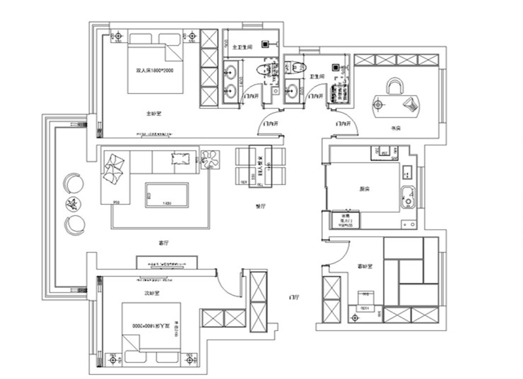
户型图
精品设计案例
设计说明:
三室两厅一厨两卫,高层整体采用美式风格,色调以深色为主,体现美式的居家感和温馨感。
设计说明:
本案业主为年轻时尚小两口,所以我们考虑到未来想要给未来宝宝一个温馨舒适的一个房间,所以本案整体采用现代风格的手法,运用颜色,来打造整体空间的设计感及时尚感
设计说明:
本案以北欧风格为主题的设计,北欧风格能以现代、简洁、自然的特点俘获人心,所营造出来的生活氛围会让人倍感舒适与自在。
设计说明:
客户是一名成功人士,对于家的执念就是简单干净,客户衣服比较多,所以把每个空间都做了大衣柜,并且融入到设计里