立即预约 立即预约
免费定制整装家居

免费定制整装家居

一站置家 全程无忧 一省到底
hide.png

当前位置: 首页 > 装修案例效果图 > 保利茉莉公馆

保利茉莉公馆 119平 北欧风格效果图

收藏
案例风格 北欧 案例户型 三居 案例面积 119平米
楼盘名称 保利茉莉公馆 设计师 林凤设计师 案例类型 改善性住宅

设计理念:由于本房主家采光非常差,所以在色彩搭配上以大面积白色为主,简洁大方。配色上选用的是今年流行的莫兰迪色,无纯度特别高的彩色,所有颜色都加入了灰色。

客厅
第1张
第2张
餐厅
第1张
卧室
第1张
第2张
卫生间
第1张
第2张
厨房
第1张
儿童房
第1张
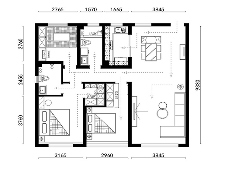
户型图
第1张
  • 案例详情

保利茉莉-119-莫兰迪-电视.jpg 保利茉莉-119-莫兰迪-沙发.jpg

保利茉莉公馆119平三室两厅北欧风格林凤装饰的客厅没有做任何的造型设计,电视背景墙很大,所以电视柜选择定制的落地电视柜,平时便于打理,既美观又实用。

保利茉莉-119-莫兰迪-餐厅.jpg

保利茉莉公馆119平三室两厅北欧风格林凤装饰的餐厅餐桌选择的是原木色餐桌,与定制类互相呼应。

保利茉莉-119-莫兰迪-主卧室.jpg 保利茉莉-119-莫兰迪-榻榻米.jpg

保利茉莉公馆119平三室两厅北欧风格林凤装饰的卧室窗户采用的是落地窗,整体定制衣柜,主卧室多做了一个大的衣帽间,储物空间大大增加。

保利茉莉-119-莫兰迪-主卫.jpg 保利茉莉-119-莫兰迪-次卫.jpg

保利茉莉公馆119平三室两厅北欧风格林凤装饰的卫生间整体颜色选择灰色,在洁具方面选择大面积白色,卫生间没有做太多的色彩。

保利茉莉-119-莫兰迪-厨房.jpg

保利茉莉公馆119平三室两厅北欧风格林凤装饰的厨房瓷砖采用的是灰色瓷砖加上白色勾缝剂,橱柜选择白色高光材质,整体感觉,既干净,又立正,厨房平时油烟较重,所以橱柜在选择上造型越简单越便于打理。

保利茉莉-119-莫兰迪-儿童房.jpg

保利茉莉公馆119平三室两厅北欧风格林凤装饰的儿童房

保利茉莉-119-莫兰迪-平面图.jpg

户型图

案例设计师

林凤设计师

设计师:林凤设计师

从业时间:0年

设计理念:

预约设计师

算算你家装修多少钱

报名即享丰厚赠品,品质装修

免费报价
咨询热线:400-656-9909
20190221103704574636.jpg

精品设计案例

20180612134930523248.jpg 服务号二维码.jpg