立即预约 立即预约
免费定制整装家居

免费定制整装家居

一站置家 全程无忧 一省到底
hide.png

当前位置: 首页 > 装修案例效果图 > 浦江苑御品

浦江苑御品 89平 新中式风格效果图

收藏
案例风格 新中式 案例户型 二居 案例面积 89平米
楼盘名称 浦江苑御品 设计师 林凤设计师 案例类型 改善性住宅

设计理念:两室一厅一厨一卫,高层,整体风格采用了新中式风格,以胡桃木为主色调,深化新中式整体深邃,幽静的氛围

客厅
第1张
第2张
第3张
餐厅
第1张
卧室
第1张
第2张
卫生间
第1张
门厅
第1张
户型图
第1张
  • 案例详情

浦江苑御品-89平-新中式风格-客厅.jpg 浦江苑御品-89平-新中式风格-首图.jpg 浦江苑御品-89平-新中式风格-沙发背景墙.jpg

浦江苑御品89平两室两厅新中式风格林凤装饰的客厅设计中,新中式的木质屏风,搭配门厅订制柜的套色处理,有现在风格的 简单随意,也有中式风格的木质纹理,同时客厅淡蓝色的碎花壁纸,更加突出新中式的特点,与沙发背景相对于应,完美呼应,同时新中式的沙发茶几电视柜的家具组合,更加彰显新中式的高端与贵气。

浦江苑御品-89平-新中式风格-餐厅.jpg

浦江苑御品89平两室两厅新中式风格林凤装饰的餐厅继续沿用新中式胡桃木的主色调,搭配镂空屏风柜的设计,隔开了餐桌与卫生间距离较近的尴尬,同时也活跃了餐厅空间的氛围,也增加了储物功能,一箭双雕的功效。

浦江苑御品-89平-新中式风格-次卧.jpg 浦江苑御品-89平-新中式风格-主卧.jpg

【主卧室说明】卧室主卧室叔叔阿姨住,整体依旧采用新中式风格,古朴,恬静,阳台空间有增加了订制柜,增加储物功能。【次卧室说明】次卧室儿子住,儿子读研需要足够多书柜空间,整体现代风格为主,户型书桌增加储物,白色与黑色套色的柜子,增加空间的趣味感。

浦江苑御品-89平-新中式风格-卫生间.jpg

浦江苑御品89平两室两厅新中式风格林凤装饰的卫生间

浦江苑御品-89平-新中式风格-门厅.jpg

浦江苑御品89平两室两厅新中式风格林凤装饰的玄关

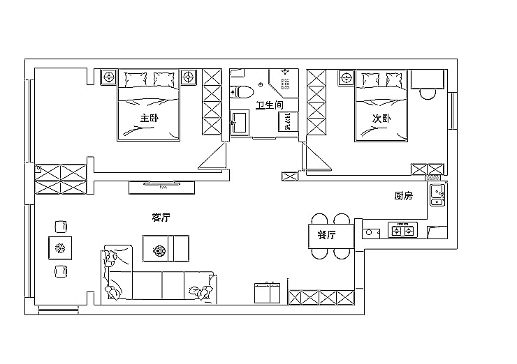
浦江苑御品-89平-新中式风格-平面图.jpg

户型图

案例设计师

林凤设计师

设计师:林凤设计师

从业时间:5年

设计理念:设计源于生活,生活因设计而改变,用有限的空间。做无限的设计,成就梦想之家。

预约设计师

算算你家装修多少钱

报名即享丰厚赠品,品质装修

免费报价
咨询热线:400-656-9909
20190221103704574636.jpg

精品设计案例

20180612134930523248.jpg 服务号二维码.jpg