立即预约 立即预约
免费定制整装家居

免费定制整装家居

一站置家 全程无忧 一省到底
hide.png

当前位置: 首页 > 装修案例效果图 > 华润二十四城

华润二十四城 130平 现代简约风格效果图

收藏
案例风格 现代简约 案例户型 三居 案例面积 130平米
楼盘名称 华润二十四城 设计师 林凤设计师 案例类型 改善性住宅

设计理念:业主倾向于灰白现代简约感觉,所以推荐现代风格

客厅
第1张
第2张
第3张
餐厅
第1张
卧室
第1张
第2张
厨房
第1张
门厅
第1张
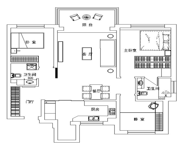
户型图
第1张
  • 案例详情

华润二十四城-130平-现代风格-客厅.jpg 华润二十四城-130平-现代风格-客厅2.jpg 华润二十四城-130平-现代风格-首图.jpg

华润二十四城130平三室两厅现代风格林凤装饰的客厅硬装以灰白色为主色调,搭配米色实现区域划分,凸显客厅的线条感和时尚感,同时掉棚于客厅相呼应,对称,协调,配合灯带实现客户想要的简约时尚感,有层次的彰显了家装的品味和格调,电视背景墙线条和色彩呼应整体颜色的大气特点更显的一体化。

华润二十四城-130平-现代风格-餐厅.jpg

华润二十四城130平三室两厅现代风格林凤装饰的餐厅主色调会米色和白色,实现了和客厅在色彩上的分区,但是色调为同色系,别致又融合,符合业主关于餐厅温馨的要求

华润二十四城-130平-现代风格-次卧室.jpg 华润二十四城-130平-现代风格-主卧室.jpg

华润二十四城130平三室两厅现代风格林凤装饰的卧室以温馨为主,简单的棚线处理,简约现代大方;【榻榻米说明】收纳加储物,利用套色使空间更加活拨。

华润二十四城-130平-现代风格-厨房.jpg

华润二十四城130平三室两厅现代风格林凤装饰的厨房

华润二十四城-130平-现代风格-门厅.jpg

华润二十四城130平三室两厅现代风格林凤装饰的玄关

华润二十四城-130平-现代风格-平面图.jpg

户型图

案例设计师

林凤设计师

设计师:林凤设计师

从业时间:8年

设计理念:合理划分空间,让设计融入生活,营造自然,品味,格调。

预约设计师

算算你家装修多少钱

报名即享丰厚赠品,享半价装修

免费报价
咨询热线:400-656-9909
20190221103704574636.jpg

精品设计案例

20180612134930523248.jpg 服务号二维码.jpg