立即预约 立即预约
免费定制整装家居

免费定制整装家居

一站置家 全程无忧 一省到底
hide.png

当前位置: 首页 > 装修案例效果图 > 华润二十四城

华润二十四城 154平 现代简约风格效果图

收藏
案例风格 现代简约 案例户型 四居 案例面积 154平米
楼盘名称 华润二十四城 设计师 林凤设计师 案例类型 改善性住宅

设计理念:男女业主追求自由而简约的生活空间。

客厅
第1张
第2张
第3张
第4张
餐厅
第1张
卧室
第1张
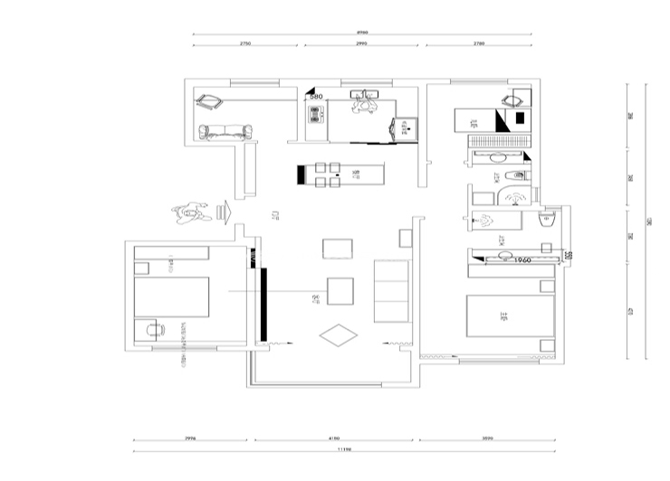
户型图
第1张
  • 案例详情

S5-王颖-华润二十四城-150㎡-意式极简-客厅 (2).jpg S5-王颖-华润二十四城-150㎡-意式极简.jpg S5-王颖-华润二十四城-150㎡-意式极简-客厅.jpg S5-王颖-华润二十四城-150㎡-意式极简-客厅背景墙.jpg

华润二十四城154平四室两厅极简风格林凤装饰的客厅以浅灰色壁布稳重而不会有沉闷感,简洁的木作背景墙结合隐形门,宁静致远。很好的拉长了背景墙的延伸感。嵌入式的黑色玻璃结合电视,视觉冲击力更强

S5-王颖-华润二十四城-150㎡-意式极简-餐厅.jpg

华润二十四城154平四室两厅极简风格林凤装饰的餐厅地面通铺到厨房 餐厅 ,倒台餐桌,嵌入和红酒区,现代感,极简十足,又充满了时尚的生活空间。

S5-王颖-华润二十四城-150㎡-卧室.jpg

华润二十四城154平四室两厅极简风格林凤装饰的卧室木作背景墙嵌入灯光,简洁的装饰了整空间

S5-王颖-华润二十四城-150㎡-意式极简-平面布局.jpg

户型图

案例设计师

林凤设计师

设计师:林凤设计师

从业时间:6年

设计理念:专注于一件事,并把他做到极致,

预约设计师

算算你家装修多少钱

报名即享丰厚赠品,享半价装修

免费报价
咨询热线:400-656-9909
20190221103704574636.jpg

精品设计案例

20180612134930523248.jpg 服务号二维码.jpg