立即预约 立即预约
免费定制整装家居

免费定制整装家居

一站置家 全程无忧 一省到底
hide.png

当前位置: 首页 > 装修案例效果图 > 远洋大河宸章

远洋大河宸章 155平 现代简约风格效果图

收藏
案例风格 现代简约 案例户型 三居 案例面积 155平米
楼盘名称 远洋大河宸章 设计师 齐逢辉 案例类型 改善性住宅

设计理念:设计为王,只有新颖的设计才会在大浪淘沙中闪烁出与众不同的光芒。
本案例设计理念:本案整体设计为现代港式风格。现代港式风格效果主要体现为采用港式的装饰风格的同时结合现代风格的简约,使之更符合现代人的审美和居住标准。

客厅
第1张
第2张
餐厅
第1张
卧室
第1张
第2张
卫生间
第1张
厨房
第1张
阳台
第1张
书房
第1张
休闲区
第1张
户型图
第1张
  • 案例详情

远洋大河宸章-155平-现代港式-客厅.jpg 远洋大河宸章-155平-现代港式-首图.jpg

远洋大河宸章155平三室两厅现代港式风格林凤装饰的客厅采用金色金属线条的装饰结合暖色的沙发,体现豪华大气与质感的同时又显得温馨自然

远洋大河宸章-155平-现代港式-餐厅.jpg

远洋大河宸章155平三室两厅现代港式风格林凤装饰的餐厅色彩线条简单的餐桌椅,显得干练简洁,与岛台结合在一起,非常实用,绿植的装饰添加了生气。

远洋大河宸章-155平-现代港式-榻榻米.jpg 远洋大河宸章-155平-现代港式-卧室.jpg

远洋大河宸章155平三室两厅现代港式风格林凤装饰的卧室运用白色作为主色调,整体风格也是简洁的,让卧室变得十分温馨,无论是墙面地面家具等,都是以简洁为主,室内的绿植增添了生气,可以让业主拥有一个舒适的休息空间。

远洋大河宸章-155平-现代港式-卫生间.jpg

远洋大河宸章155平三室两厅现代港式风格林凤装饰的卫生间整体以白色的主色调,卫生间设计空间大,简洁而不失优雅,进门之后会感到特别明亮,墙壁上的绿植挂画增添了一丝生气。

远洋大河宸章-155平-现代港式-厨房.jpg

远洋大河宸章155平三室两厅现代港式风格林凤装饰的厨房上橱柜用白色,配用白色花纹的砖,使厨房整体清晰整洁。

远洋大河宸章-155平-现代港式-阳台.jpg

远洋大河宸章155平三室两厅现代港式风格林凤装饰的阳台

远洋大河宸章-155平-现代港式-书房.jpg

远洋大河宸章155平三室两厅现代港式风格林凤装饰的书房

远洋大河宸章-155平-现代港式-书房.jpg

远洋大河宸章155平三室两厅现代港式风格林凤装饰的休闲区

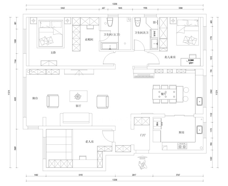
远洋大河宸章-155平-现代港式-平面图.jpg

户型图

案例设计师

齐逢辉

设计师:齐逢辉

从业时间:12年

设计理念:设计为王,只有新颖的设计才会在大浪淘沙中闪烁出与众不同的光芒。

预约设计师

算算你家装修多少钱

报名即享丰厚赠品,品质装修

免费报价
咨询热线:400-656-9909
20190221103704574636.jpg

精品设计案例

20180612134930523248.jpg 服务号二维码.jpg