立即预约
免费定制整装家居
一站置家 全程无忧 一省到底
设计理念:现代简约风格是现代都市比较常见的一种装修风格,旨在营造出简单时尚,现代化流行趋势气息强烈的家居氛围,是大部分年轻人比较喜欢和青睐的一种装修风格。本案将现代简约中的时尚元素,与当下流行的原木家具相结合,介于港式和现代之间,更贴合房主人想要简单大方、活泼而时尚的想法。
案例详情
蓝天家园145平三室两厅现代风格林凤装饰的客厅的设计感觉源于老人的一句话,宽敞而富于变化,沉稳而略显档次。客厅的电视背景墙果断采用了抽象纹理的大理石瓷砖,开阔的客厅,理石平铺的光泽在灯光下熠熠生辉。沙发墙用木作和硬包结合,将整个客厅空间勾回温馨和静谧,搭配灰蓝色沙发,沉稳而不失格调。
蓝天家园145平三室两厅现代风格林凤装饰的餐厅是改造后的效果,主要是棚顶的梁太低,没法直接吊平棚,索性直接顺着梁做了造型,将餐厅与客厅区分开,嵌入式酒柜增加了餐厅的丰富感,也彰显了主人一家的生活品味。
蓝天家园145平三室两厅现代风格林凤装饰的主卧是老人的卧室,整个空间干净整洁,嵌入式衣柜增加了上面的储存空间,复合老人的心意,也装点了空间,不繁复,不啰嗦。【次卧室说明】次卧是男女主人的房间,同样是嵌入式衣柜,靠近阳台有墙垛的地方设计了地台,美化了卧室中突兀出现的墙垛,也增加了储物空间,同时更为卧室增加了休闲的氛围。
蓝天家园145平三室两厅现代风格林凤装饰的卫生间的墙面砖选择用两种颜色的地砖切割铺贴,更区别于整体的暖色格调,大胆的布置成冷色调,质感更强,档次更高,不规则的错缝铺贴法也增加了空间的变化,提高了空间的艺术性和设计性。
蓝天家园145平三室两厅现代风格林凤装饰的厨房为封闭式厨房,U型厨房的好处在于多人操作流程的合理化,洗菜、切菜、炒菜,人体工程学最大化的利用,厨房电器设备充分的融入,更增加了厨房的功能性和些许娱乐性,让人轻易的做出好吃的食物,更增添生活的多样性,让家里的每顿餐食融入更多的温馨与韵味。
蓝天家园145平三室两厅现代风格林凤装饰的书房
蓝天家园145平三室两厅现代风格林凤装饰的玄关
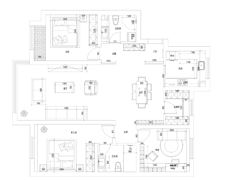
户型图
精品设计案例
设计说明:
三室两厅一厨两卫,高层整体采用美式风格,色调以深色为主,体现美式的居家感和温馨感。
设计说明:
本案业主为年轻时尚小两口,所以我们考虑到未来想要给未来宝宝一个温馨舒适的一个房间,所以本案整体采用现代风格的手法,运用颜色,来打造整体空间的设计感及时尚感
设计说明:
本案以北欧风格为主题的设计,北欧风格能以现代、简洁、自然的特点俘获人心,所营造出来的生活氛围会让人倍感舒适与自在。
设计说明:
客户是一名成功人士,对于家的执念就是简单干净,客户衣服比较多,所以把每个空间都做了大衣柜,并且融入到设计里