立即预约 立即预约
免费定制整装家居

免费定制整装家居

一站置家 全程无忧 一省到底
hide.png

当前位置: 首页 > 装修案例效果图 > 融创沈阳府

融创沈阳府 145平 现代简约风格效果图

收藏
案例风格 现代简约 案例户型 四居 案例面积 145平米
楼盘名称 融创沈阳府 设计师 林凤设计师 案例类型 改善性住宅

设计理念:本案是现代风格。现代风格外形简洁、功能强,强调室内空间形态和物件的单一性、抽象性。所以本方案设计时整体的色调上选择的是白色烤漆木、胡桃木色搭配一些橙色软装配饰,室内的家具都是以简约好打理为主以及木色为主,体现了现代生活快节奏、富有朝气的生活气息.

客厅
第1张
第2张
第3张
第4张
第5张
第6张
餐厅
第1张
厨房
第1张
门厅
第1张
过廊
第1张
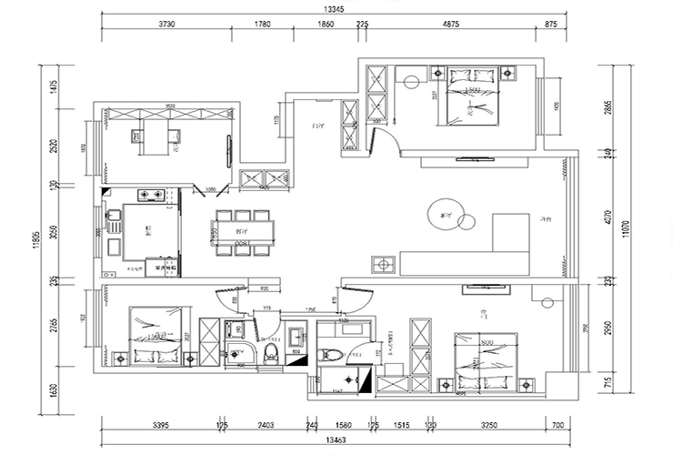
户型图
第1张
  • 案例详情

S8-融创沈阳府-145平-现代风格-客厅1.jpg S8-融创沈阳府-145平-现代风格-客厅2.jpg S8-融创沈阳府-145平-现代风格-客厅3.jpg S8-融创沈阳府-145平-现代风格-客厅4.jpg S8-融创沈阳府-145平-现代风格-客厅5.jpg S8-融创沈阳府-145平-现代风格-首图.jpg

融创沈阳府145平四室两厅现代风格林凤装饰的客厅的空间吊顶造型非常丰富,电视背景墙造型一侧采用隐形门口设计,另一侧是假门板,中间以石材和护墙板的结合,电视柜组合形式为主,沙发墙后期按照风格的要求放置一组装饰画。装饰画为衬托,使居室充满惬意、轻松气氛。

S8-融创沈阳府-145平-现代风格-餐厅.jpg

融创沈阳府145平四室两厅现代风格林凤装饰的餐厅棚顶造型将餐厅空间划分为两个空间,本案餐厅区橙色加胡桃木色餐桌,搭配橙色皮质餐椅,吊灯与客厅吊灯呼应。餐厅旁边一侧是一组嵌入式酒柜。

S8-融创沈阳府-145平-现代风格-厨房.jpg

融创沈阳府145平四室两厅现代风格林凤装饰的厨房是标准U型橱柜,墙地砖基本是个客厅相呼应,橱柜柜门比较好打理胡桃木色的。厨房的电器不多,冰箱是双开门。厨房是封闭式以四扇拉门为主,简洁实用。

S8-融创沈阳府-145平-现代风格-门厅.jpg

融创沈阳府145平四室两厅现代风格林凤装饰的玄关

S8-融创沈阳府-145平-现代风格-过道.jpg

融创沈阳府145平四室两厅现代风格林凤装饰的过道

S8-融创沈阳府-145平-现代风格-平面方案.jpg

案例设计师

林凤设计师

设计师:林凤设计师

从业时间:6年

设计理念:一切随心,用心去感悟空间

预约设计师

算算你家装修多少钱

报名即享丰厚赠品,享半价装修

免费报价
咨询热线:400-656-9909
20190221103704574636.jpg

精品设计案例

20180612134930523248.jpg 服务号二维码.jpg