立即预约
免费定制整装家居
一站置家 全程无忧 一省到底
设计理念:本方案以现代轻奢的风格为主题,金属线条来凸显质感,从而彰显了一种高品质的生活方式,让整个家变得更温馨,舒适。
案例详情
华润万象府178平三室两厅现代轻奢风格林凤装饰的客厅以简约舒适的灰色沙发作为主角,与玻璃茶几相呼应在质感、触感上形成强烈的对比,用冷色和暖色搭配,不局限于单一色调。通过金色金属线条和背景墙的块面,形成线面呼应。
华润万象府178平三室两厅现代轻奢风格林凤装饰的餐厅设置在窗旁,光线也是很明亮通透,摆放一张黑色的理石餐桌,搭配几张深色的椅子,不土豪,不张扬。
华润万象府178平三室两厅现代轻奢风格林凤装饰的主卧室采用套房的设计理念,实用大气,温馨自然,让整个空间感受更有档次。
华润万象府178平三室两厅现代轻奢风格林凤装饰的卫生间整体空间比较大,采用双盆浴室柜,两个人可以一起洗漱,好看又实用。白色围边的浴镜反射扩大空间,浴缸旁的玻璃使整个空间高大上起来。
华润万象府178平三室两厅现代轻奢风格林凤装饰的厨房橱柜选用白色的门板,搭配灰色的地砖,相对来说还是比较简约的,厨房转角处设计操作台,主要的一些烤箱等电器都在那边,空间运用的合理。
华润万象府178平三室两厅现代轻奢风格林凤装饰的过廊
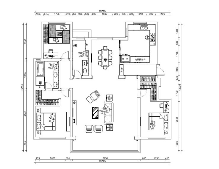
户型图
精品设计案例
设计说明:
三室两厅一厨两卫,高层整体采用美式风格,色调以深色为主,体现美式的居家感和温馨感。
设计说明:
本案业主为年轻时尚小两口,所以我们考虑到未来想要给未来宝宝一个温馨舒适的一个房间,所以本案整体采用现代风格的手法,运用颜色,来打造整体空间的设计感及时尚感
设计说明:
本案以北欧风格为主题的设计,北欧风格能以现代、简洁、自然的特点俘获人心,所营造出来的生活氛围会让人倍感舒适与自在。
设计说明:
客户是一名成功人士,对于家的执念就是简单干净,客户衣服比较多,所以把每个空间都做了大衣柜,并且融入到设计里