立即预约 立即预约
免费定制整装家居

免费定制整装家居

一站置家 全程无忧 一省到底
hide.png

当前位置: 首页 > 装修案例效果图 > 龙之梦畅园

龙之梦畅园 158平 轻奢风格效果图

收藏
案例风格 轻奢 案例户型 三居 案例面积 158平米
楼盘名称 龙之梦畅园 设计师 李承成 案例类型 改善性住宅

设计理念:现代轻奢风格在以往的现代简约基础之上,增加了材料质感。利用软装搭配选择和色系搭配,从简到精致,利用低饱和度的色系给人带来舒适度的同时又高贵时尚。

客厅
第1张
第2张
第3张
餐厅
第1张
卧室
第1张
第2张
卫生间
第1张
厨房
第1张
门厅
第1张
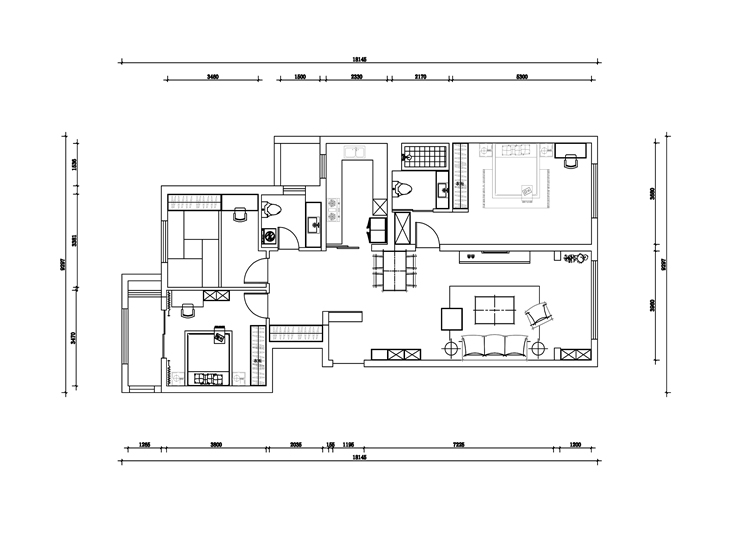
户型图
第1张
  • 案例详情

龙之梦畅园-158平-现代轻奢-客厅1.jpg 龙之梦畅园-158平-现代轻奢-客厅2.jpg 龙之梦畅园-158平-现代轻奢-客厅.jpg

龙之梦畅园158平现代轻奢风格三室两厅林凤装饰的客厅是主人休闲交流、接人待物的主要场所,硬装部分采用低饱和度的灰色护墙板结合天然质感的理石,暖灰色的地面让人放松身心的同时又时尚自然,再利用软装色彩的调配和饰品的搭配使整个空间多了几分现代的贵气。

龙之梦畅园-158平-现代轻奢-餐厅.jpg

龙之梦畅园158平现代轻奢风格三室两厅林凤装饰的餐厅采用融合入客厅的手法,使整个空间浑然一体,墙面简单挂画装饰使空间活起来又不抢客厅的风头,简约而时尚。

龙之梦畅园-158平-现代轻奢-主卧.jpg 龙之梦畅园-158平-现代轻奢-次卧.jpg

龙之梦畅园158平现代轻奢风格三室两厅林凤装饰的主卧室的设计以中性色为主,护墙板配和装饰画,高贵大气,玻璃门结合板门衣柜勾勒出轻奢的时尚,身在其中能感受到的只有舒适与放松。

龙之梦畅园-158平-现代轻奢-卫生间.jpg

龙之梦畅园158平现代轻奢风格三室两厅林凤装饰的卫生间相对私密,配以暖咖色的墙地砖造型铺装,使整个空间视觉扩大,浴区分离让整个卫生间更加的大气,轻奢流露。

龙之梦畅园-158平-现代轻奢-厨房.jpg

龙之梦畅园158平现代轻奢风格三室两厅林凤装饰的厨房为便于使用与取物,又不想空间看起来狭长拥挤,橱柜选用时尚的烤漆门板,高低错落的电器嵌入最有效的利用空间,合理的格局分配让厨房空间充分的利用。

龙之梦畅园-158平-现代轻奢-门厅.jpg

龙之梦畅园158平现代轻奢风格三室两厅林凤装饰的玄关

龙之梦畅园-158平-现代轻奢-平面图.jpg

户型图

案例设计师

李承成

设计师:李承成

从业时间:15年

设计理念:细节决定品质。

预约设计师

算算你家装修多少钱

报名即享丰厚赠品,品质装修

免费报价
咨询热线:400-656-9909
20190221103704574636.jpg

精品设计案例

20180612134930523248.jpg 服务号二维码.jpg