立即预约 立即预约
免费定制整装家居

免费定制整装家居

一站置家 全程无忧 一省到底
hide.png

当前位置: 首页 > 装修案例效果图 > 保利紫荆公馆

保利紫荆公馆 135平 轻奢风格效果图

收藏
案例风格 轻奢 案例户型 四居 案例面积 135平米
楼盘名称 保利紫荆公馆 设计师 林凤装饰设计师 案例类型 改善性住宅

设计理念:本案是以客户喜好色彩和配饰进行私人订制方案,大面积护墙饰面,金属线条也是以金色为主,让客户耳目一新,简约大气。

客厅
第1张
第2张
餐厅
第1张
第2张
卧室
第1张
第2张
卫生间
第1张
第2张
厨房
第1张
书房
第1张
儿童房
第1张
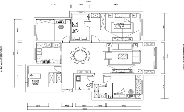
户型图
第1张
  • 案例详情

保利紫荆公馆-135平-现代轻奢风格-客厅.jpg 保利紫荆公馆-135平-现代轻奢风格-首图.jpg

保利紫荆公馆135平四室两厅现代轻奢风格林凤装饰的客厅以清简的浅灰色墙面,灰色的布艺沙发配合黄色单椅点缀,浅灰色的地砖,配合电视背景护墙板,简约大气。

保利紫荆公馆-135平-现代轻奢风格-餐厅.jpg 保利紫荆公馆-135平-现代轻奢风格-客餐厅.jpg

保利紫荆公馆135平四室两厅现代轻奢风格林凤装饰的餐厅以地心黑色石材波导线,配合黑色斗柜,让餐厅整体颜色不杂乱,配合筒灯点缀,凸显墙面光影效果。

保利紫荆公馆-135平-现代轻奢风格-主卧1.jpg 保利紫荆公馆-135平-现代轻奢风格-主卧2.jpg

保利紫荆公馆135平四室两厅现代轻奢风格林凤装饰的主卧室与主卫之间以衣柜相隔,现代感十足的床品、硬包,让整个空闲突出了时尚感

保利紫荆公馆-135平-现代轻奢风格-客卫.jpg 保利紫荆公馆-135平-现代轻奢风格-主卫.jpg

【主卫生间说明】以灰色调为主,配以浴缸,墙砖选择AB版带腰线,整体会变得有点变化,让墙地面有分隔。【客卫生间说明】以暖色调为主,镜箱配以灯光,地面选用和墙面不同的砖,稍微带有变化感,理石的台面,也和主人喜欢的现代轻奢感相辅相成。

保利紫荆公馆-135平-现代轻奢风格-厨房.jpg

保利紫荆公馆135平四室两厅现代轻奢风格林凤装饰的厨房是重中之重,因为是宽敞的拉门,如果颜色复杂会显得整个厨房、餐厅特别杂乱,所以这里选择的是白色墙砖,地面延续和客餐厅一样的地砖通铺

保利紫荆公馆-135平-现代轻奢风格-次卧2.jpg

保利紫荆公馆135平四室两厅现代轻奢风格林凤装饰的书房的设计以简洁为主,简单的吊棚、石膏线,柜门放弃了死板的纯柜门,配合玻璃,更显得通透

保利紫荆公馆-135平-现代轻奢风格-次卧1.jpg

保利紫荆公馆135平四室两厅现代轻奢风格林凤装饰的女儿房设计了飘窗柜,书桌与柜体一体的设计,节省空间,用儿童喜欢的浅粉色搭配,给女儿的成长期增光添彩。

保利紫荆公馆-135平-现代轻奢风格-平面图.jpg

案例设计师

林凤装饰设计师

设计师:林凤装饰设计师

从业时间:4年

设计理念:设计源于对生活的热爱,一分热爱,十分理解,百分感悟。

预约设计师

算算你家装修多少钱

报名即享丰厚赠品,品质装修

免费报价
咨询热线:400-656-9909
20190221103704574636.jpg

精品设计案例

20180612134930523248.jpg 服务号二维码.jpg