立即预约 立即预约
免费定制整装家居

免费定制整装家居

一站置家 全程无忧 一省到底
hide.png

当前位置: 首页 > 装修案例效果图 > 御水湾

御水湾 300平 轻奢风格效果图

收藏
案例风格 轻奢 案例户型 五居 案例面积 300平米
楼盘名称 御水湾 设计师 林凤装饰设计师 案例类型 改善性住宅

设计理念:本案是以客户喜好色彩和配饰进行私人订制方案,大面积护墙饰面,金属线条也是以金色为主,让客户耳目一新,简约大气。

客厅
第1张
第2张
餐厅
第1张
第2张
第3张
卧室
第1张
第2张
第3张
第4张
第5张
卫生间
第1张
第2张
书房
第1张
休闲区
第1张
户型图
第1张
第2张
  • 案例详情

御水湾-300平-现代轻奢风格-首图.jpg 御水湾-300平-现代轻奢风格-客厅2.jpg

御水湾300平5居室现代轻奢风格林凤装饰的客厅以理石作为主背景墙显得奢华又及其低调。配以简约的沙发,电视背景墙与沙发背景墙相互辉映。

御水湾-300平-现代轻奢风格-餐厅1.jpg 御水湾-300平-现代轻奢风格-餐厅2.jpg 御水湾-300平-现客厅餐厅1.jpg

御水湾300平5居室现代轻奢风格林凤装饰的餐厅面积很大,配合轻奢风格的餐桌餐椅,配合圆形吊棚,上下呼应。

御水湾-300平-现代轻奢风格-客卧.jpg 御水湾-300平-现代轻奢风格-客卧2.jpg 御水湾-300平-现代轻奢风格-主卧.jpg 御水湾-300平-现代轻奢风格-榻榻米.jpg 御水湾-300平-现代轻奢风格-主卧2.jpg

【榻榻米说明】创意的定制柜,给原本笨拙的榻榻米以灵动。活泼;【一楼卧室说明】以烟粉色为主,配以灰色布艺,清新奢华;【二楼卧室说明】软装搭配以蓝色和嫩黄色为主,搭配定制柜子,挂画,实现一个整体。

御水湾-300平-现代轻奢风格-客卫.jpg 御水湾-300平-现代轻奢风格-主卫.jpg

御水湾300平5居室现代轻奢风格林凤装饰的卫生间错层铝扣板吊顶,搭配暖灰色的砖,高端大气

御水湾-300平-现代轻奢风格-书房.jpg

御水湾300平5居室现代轻奢风格林凤装饰的书房

御水湾-300平-现代轻奢风格-花园.jpg

御水湾300平5居室现代轻奢风格林凤装饰的花园

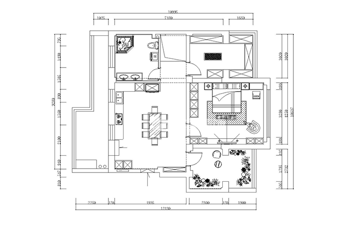
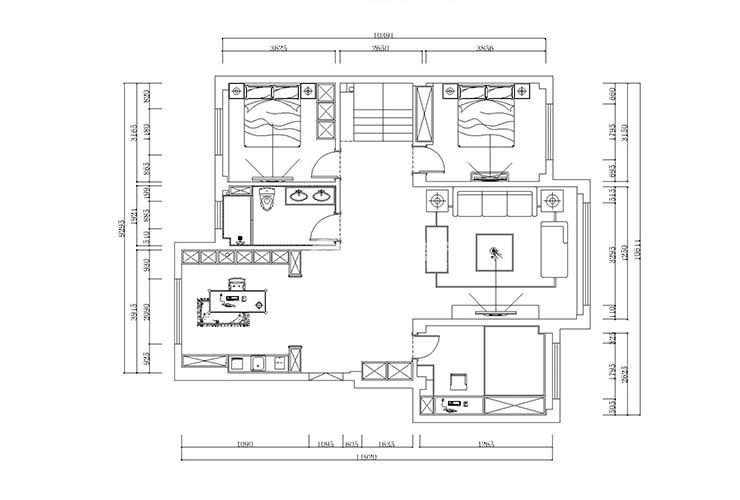
御水湾-300平-现代轻奢风格-二楼平面图.jpg 御水湾-300平-现代轻奢风格-一楼平面图.jpg

户型图

案例设计师

林凤装饰设计师

设计师:林凤装饰设计师

从业时间:4年

设计理念:设计源于对生活的热爱,一分热爱,十分理解,百分感悟。

预约设计师

算算你家装修多少钱

报名即享丰厚赠品,品质装修

免费报价
咨询热线:400-656-9909
20190221103704574636.jpg

精品设计案例

20180612134930523248.jpg 服务号二维码.jpg