立即预约 立即预约
免费定制整装家居

免费定制整装家居

一站置家 全程无忧 一省到底
hide.png

当前位置: 首页 > 装修案例效果图 > 月星国际

月星国际 120平 现代简约风格效果图

收藏
案例风格 现代简约 案例户型 三居 案例面积 120平米
楼盘名称 月星国际 设计师 高阳 案例类型 改善性住宅

设计理念:体现房屋的价值,适合的拆改,整体的规划,实现功能最大。

客厅
第1张
第2张
第3张
餐厅
第1张
第2张
卧室
第1张
卫生间
第1张
厨房
第1张
门厅
第1张
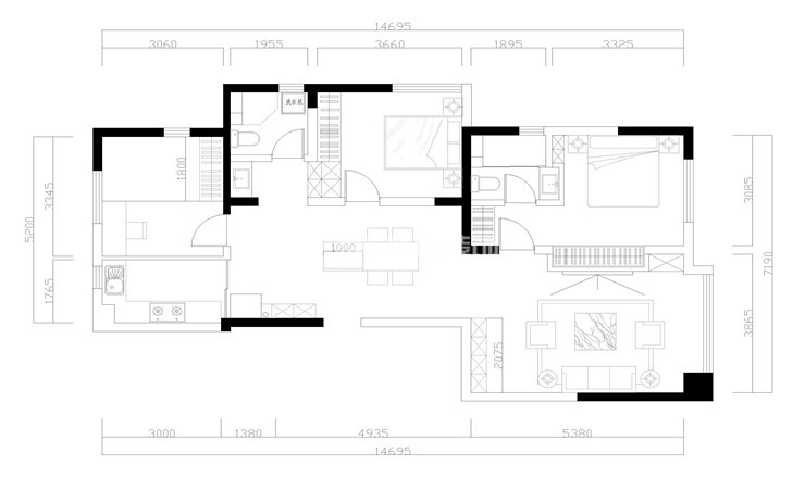
户型图
第1张
  • 案例详情

S3-高阳-月星国际-120-现代风格-客厅.jpg S3-高阳-月星国际-120-现代风格-客厅2.jpg S3-高阳-月星国际-120-现代风格-沙发背景.jpg

月星国际120平三室两厅现代风格林凤装饰的客厅大理石电视墙简约肃静,增加了储物功能,以面及块和的材质延续整体风格,为整个空间打造一种自然的基底效果。

S3-高阳-月星国际-120-现代风格-餐厅.jpg S3-高阳-月星国际-120-现代风格-餐厅1.jpg

月星国际120平三室两厅现代风格林凤装饰的餐厅桌面沿袭雪花白大理石与深色色调搭配,配合岛台使得空间变得丰富。

S3-高阳-月星国际-120-现代风格-卧室.jpg

月星国际120平三室两厅现代风格林凤装饰的卧室光线从窗进入卧室,舒适只有通过气氛去营造。

S3-高阳-月星国际-120-现代风格-卫生间.jpg

月星国际120平三室两厅现代风格林凤装饰的卫生间简洁的干湿分离,与流畅的动线为基本诉求。

S3-高阳-月星国际-120-现代风格-厨房.jpg

月星国际120平三室两厅现代风格林凤装饰的厨房

S3-高阳-月星国际-120-现代风格-门厅.jpg

月星国际120平三室两厅现代风格林凤装饰的玄关

S3-高阳-月星国际-120-现代风格-平面.jpg

户型图

案例设计师

高阳

设计师:高阳

从业时间:11年

设计理念:有限空间、无限设计。

预约设计师

算算你家装修多少钱

报名即享丰厚赠品,享半价装修

免费报价
咨询热线:400-656-9909
20190221103704574636.jpg

精品设计案例

20180612134930523248.jpg 服务号二维码.jpg