立即预约 立即预约
免费定制整装家居

免费定制整装家居

一站置家 全程无忧 一省到底
hide.png

当前位置: 首页 > 装修案例效果图 > 绿厦爵仕汇

绿厦爵仕汇 90平 欧式风格效果图

收藏
案例风格 欧式 案例户型 二居 案例面积 90平米
楼盘名称 绿厦爵仕汇 设计师 陆旭 案例类型 改善性住宅

设计理念:本案采用简欧风格,利用金属壁纸 倒棱镜 乳胶漆变颜色相互融合 使90平米的户型完美呈现简欧特色

客厅
第1张
第2张
餐厅
第1张
第2张
第3张
卧室
第1张
第2张
第3张
卫生间
第1张
厨房
第1张
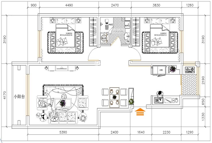
户型图
第1张
  • 案例详情

绿厦爵仕汇-90平-简欧风格-客厅1.jpg 绿厦爵仕汇-90平-简欧风格-客厅2.jpg

绿厦爵仕汇90平两室两厅简欧风格林凤装饰的客厅大量采用反光感较强的金属壁纸和反光倒棱镜让空间并不富裕的客餐厅显得明亮,乳胶漆调色让墙面 棚面层次感增强,浅色家具的搭配让家里更加温馨。

绿厦爵仕汇-90平-简欧风格-餐厅.jpg 绿厦爵仕汇-90平-简欧风格-餐厅2.jpg 绿厦爵仕汇-90平-简欧风格-餐厅3.jpg

绿厦爵仕汇90平两室两厅简欧风格林凤装饰的餐厅由于空间较小,推拉式四人台,餐厅主灯居中的设计让家里就餐人数增多的情况下也并不会有错位感。

绿厦爵仕汇-90平-简欧风格-客卧室.jpg 绿厦爵仕汇-90平-简欧风格-主卧室1.jpg 绿厦爵仕汇-90平-简欧风格-主卧室2.jpg

绿厦爵仕汇90平两室两厅简欧风格林凤装饰的卧室主要通过壁纸和家具的结合让卧室完美呈现欧式风格。

绿厦爵仕汇-90平-简欧风格-卫生间.jpg

绿厦爵仕汇90平两室两厅简欧风格林凤装饰的卫生间没有采光窗,并且空间较小,采用了地砖上墙的设计方案,利用玻璃浴屏进行了干区和湿区的分割。

绿厦爵仕汇-90平-简欧风格-厨房.jpg

绿厦爵仕汇90平两室两厅简欧风格林凤装饰的厨房采用浅色地砖配紫色柜门,让紧凑的空间多了一分色彩,让客户能在做饭的过程中也能享受到快乐!

绿厦爵仕汇-90平-简欧风格-平面图.jpg

户型图

案例设计师

陆旭

设计师:陆旭

从业时间:12年

设计理念:懂生活 爱生活 享受生活 才能设计好一个每天生活的地方

预约设计师

算算你家装修多少钱

报名即享丰厚赠品,享半价装修

免费报价
咨询热线:400-656-9909
20190221103704574636.jpg

精品设计案例

20180612134930523248.jpg 服务号二维码.jpg