立即预约 立即预约
免费定制整装家居

免费定制整装家居

一站置家 全程无忧 一省到底
hide.png

当前位置: 首页 > 装修案例效果图 > 沈阳天地

沈阳天地 116平 现代简约风格效果图

收藏
案例风格 现代简约 案例户型 二居 案例面积 116平米
楼盘名称 沈阳天地 设计师 林凤装饰设计师 案例类型 改善性住宅

设计理念:单身独居,不需要过多的储物功能需求,也不需要太多的居住空间,在私密空间也打破传统,做成半开放式

客厅
第1张
第2张
餐厅
第1张
卧室
第1张
第2张
第3张
第4张
卫生间
第1张
厨房
第1张
门厅
第1张
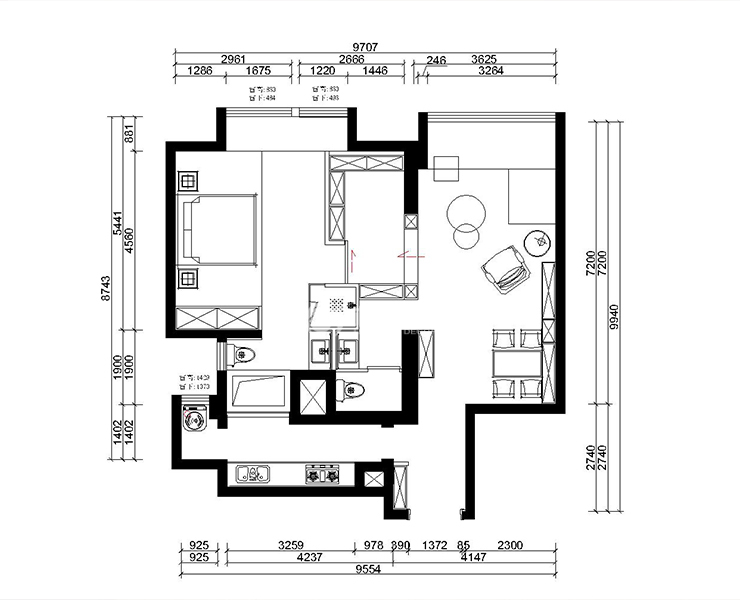
户型图
第1张
  • 案例详情

沈阳天地-116平-现代简约-客厅2.jpg 沈阳天地-116平-现代简约-首图.jpg

沈阳天地116平两室两厅现代简约风格林凤装饰的客厅用深灰色地砖和胡桃木作为主题颜色,提升了整个空间的层次感以及格调,餐厅柜体形式有变化有层次

沈阳天地-116平-现代简约-餐厅.jpg

沈阳天地116平两室两厅现代简约风格林凤装饰的餐厅

沈阳天地-116平-现代简约-次卧1.jpg 沈阳天地-116平-现代简约-次卧2.jpg 沈阳天地-116平-现代简约-主卧1.jpg 沈阳天地-116平-现代简约-主卧2.jpg

沈阳天地116平两室两厅现代简约风格林凤装饰的卧室酒店式商务感觉尽显单身高贵,地板颜色与床头背景大理石呼应提升空间的立体感

沈阳天地-116平-现代简约-卫生间.jpg

沈阳天地116平两室两厅现代简约风格林凤装饰的客卫用墙面白色瓷砖让空间变得更加明亮干净,舍弃了淋浴让空间更加宽敞,主卫舍弃了传统的封闭式卫生间,用干湿分离半开放式设计,让整体空间宽敞而有格调。

沈阳天地-116平-现代简约-厨房.jpg

沈阳天地116平两室两厅现代简约风格林凤装饰的厨房采用白色通体瓷砖大气简约明亮,撞色橱柜呼应了主体颜色

沈阳天地-116平-现代简约-入户玄关.jpg

沈阳天地116平两室两厅现代简约风格林凤装饰的玄关整体通体鞋柜,满足了日常使用的基本功能

沈阳天地-116平-现代简约-平面图.jpg

户型图

案例设计师

林凤装饰设计师

设计师:林凤装饰设计师

从业时间:4年

设计理念:在有限的空间做无限的设计,每一个作品都承载着一个家庭对美好生活的向往

预约设计师

算算你家装修多少钱

报名即享丰厚赠品,享半价装修

免费报价
咨询热线:400-656-9909
20190221103704574636.jpg

精品设计案例

20180612134930523248.jpg 服务号二维码.jpg