立即预约 立即预约
免费定制整装家居

免费定制整装家居

一站置家 全程无忧 一省到底
hide.png

当前位置: 首页 > 装修案例效果图 > 融创沈阳府

融创沈阳府 125平 现代简约风格效果图

收藏
案例风格 现代简约 案例户型 三居 案例面积 125平米
楼盘名称 融创沈阳府 设计师 魏东超 案例类型 改善性住宅

设计理念:本案已现代简约风格为主线,整体采用理石纹瓷砖,搭配哑光质感地板,装饰护墙板,简约线条打造时尚现代的家居装饰风格。

客厅
第1张
餐厅
第1张
卧室
第1张
第2张
第3张
卫生间
第1张
第2张
厨房
第1张
门厅
第1张
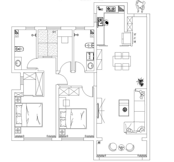
户型图
第1张
  • 案例详情

首图-融创沈阳府-125平-现代简约-客厅.jpg

融创沈阳府125平三室两厅现代简约风格林凤装饰的客厅空间主要是家庭活动区域,采用了转角式简洁沙发放置,增加了会客功能性,背景墙采用装饰石材与护墙板进行搭配,突出线条感,客厅家具也采用了现代简洁线条,时尚简洁。

融创沈阳府-125平-现代简约-餐厅.jpg

融创沈阳府125平三室两厅现代简约风格林凤装饰的餐厅采用白色理石材餐桌,搭配深色木,深浅对比强烈,搭配四把鲜艳色彩的餐椅, 增加餐区的食欲感,餐桌采用居中放置,两侧双动线设计,活动空间更灵活。

融创沈阳府-125平-现代简约-北卧.jpg 融创沈阳府-125平-现代简约-次卧.jpg 融创沈阳府-125平-现代简约-主卧.jpg

融创沈阳府125平三室两厅现代简约风格林凤装饰的卧室床头采用了装饰性壁纸铺贴,与床质感形成对比,稍重的色彩设计,更利于睡眠空间,主卧空间较小,想达到大的收纳要求,所以设计了一款透明款的衣帽间拉门设计,显得空间更大。

融创沈阳府-125平-现代简约-次卫.jpg 融创沈阳府-125平-现代简约-主卫.jpg

融创沈阳府125平三室两厅现代简约风格林凤装饰的卫生间采用理石纹理的砖进行铺贴,浴室柜与洗衣机做成一体式设计,增加更大的置物空间,吊柜同样也采用了一体式设计,增加空间感的基础上,更增大收纳空间。

融创沈阳府-125平-现代简约-厨房.jpg

融创沈阳府125平三室两厅现代简约风格林凤装饰的厨房进行了一部分的改造设计,将格式改动后进行了冰箱嵌入式设计,更节省空间,厨房合理分区,操作方便,厨房采用哑光灰色柜门,搭配金色拉手,低调奢华

融创沈阳府-125平-现代简约-玄关.jpg

融创沈阳府125平三室两厅现代简约风格林凤装饰的玄关

融创沈阳府-125平-现代简约-户型图.jpg

案例设计师

魏东超

设计师:魏东超

从业时间:14年

设计理念:在有限的空间里创造无限的可能

预约设计师

算算你家装修多少钱

报名即享丰厚赠品,品质装修

免费报价
咨询热线:400-656-9909
20190221103704574636.jpg

精品设计案例

20180612134930523248.jpg 服务号二维码.jpg