立即预约 立即预约
免费定制整装家居

免费定制整装家居

一站置家 全程无忧 一省到底
hide.png

当前位置: 首页 > 装修案例效果图 > 首创光合城

首创光合城 107平 现代简约风格效果图

收藏
案例风格 现代简约 案例户型 三居 案例面积 107平米
楼盘名称 首创光合城 设计师 林凤设计师 案例类型 改善性住宅

设计理念:现代简约风格,简约却不简单,减少繁杂的造型,主要体现后期的配饰。本案主要靠颜色的搭配,和后期的配饰来完成整体的效果。不仅美观高,实用性更高。整体以暖和为主,整体体现出明亮,不会给人压抑感。外加明黄色的点缀,更能体现出整体的活泼,这也是本案的点睛之笔。

客厅
第1张
第2张
餐厅
第1张
卧室
第1张
第2张
卫生间
第1张
厨房
第1张
衣帽间
第1张
门厅
第1张
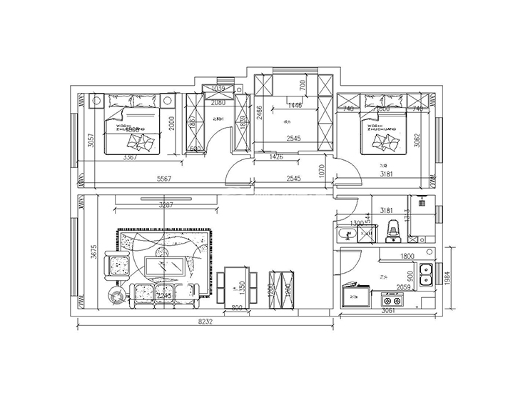
户型图
第1张
  • 案例详情

首创光合城-107平-现代风格-首图.jpg 首创光合城-107平-现代风格-客厅.jpg

首创光合城107平三室两厅现代风格林凤装饰的客厅整体墙面以明亮的白色为主,电视墙石材加护墙板更上档次。沙发墙搭配灰色,是整个空间更有质感。

首创光合城-107平-现代风格-餐厅.jpg

首创光合城107平三室两厅现代风格林凤装饰的餐厅客厅作为一个整体,没有太大的区分开,这样看着整体空间敞亮,大气。

首创光合城-107平-现代风格-次卧室.jpg 首创光合城-107平-现代风格-主卧室.jpg

首创光合城107平三室两厅现代风格林凤装饰的卧室白色为主,床头背景刷淡蓝色的乳胶漆,整体看着比较安静,从而使业主更加容易进入睡眠。

首创光合城-107平-现代风格-卫生间.jpg

首创光合城107平三室两厅现代风格林凤装饰的卫生间

首创光合城-107平-现代风格-厨房.jpg

首创光合城107平三室两厅现代风格林凤装饰的厨房为封闭式,禁止油烟外跑,颜色跟客厅相呼应,整体感更好。

首创光合城-107平-现代风格-衣帽间.jpg

首创光合城107平三室两厅现代风格林凤装饰的衣帽间

首创光合城-107平-现代风格-门厅.jpg

首创光合城107平三室两厅现代风格林凤装饰的玄关

首创光合城-107平-现代风格-平面图.jpg

户型图

案例设计师

林凤设计师

设计师:林凤设计师

从业时间:8年

设计理念:因生活而设计,因设计而美好,让你的生活环境,成为他人眼中风景。

预约设计师

算算你家装修多少钱

报名即享丰厚赠品,品质装修

免费报价
咨询热线:400-656-9909
20190221103704574636.jpg

精品设计案例

20180612134930523248.jpg 服务号二维码.jpg