立即预约 立即预约
免费定制整装家居

免费定制整装家居

一站置家 全程无忧 一省到底
hide.png

当前位置: 首页 > 装修案例效果图 > 龙湖西府原著

龙湖西府原著 87平 现代简约风格效果图

收藏
案例风格 现代简约 案例户型 二居 案例面积 87平米
楼盘名称 龙湖西府原著 设计师 林凤设计师 案例类型 改善性住宅

设计理念:本案是小二口婚房,设计要求简约时尚.融入一些有特点的设计想法

客厅
第1张
第2张
第3张
第4张
第5张
餐厅
第1张
卧室
第1张
卫生间
第1张
厨房
第1张
门厅
第1张
户型图
第1张
  • 案例详情

龙湖西府原著-87㎡-现代简约-客厅.jpg 龙湖西府原著-87㎡-现代简约-客厅3.jpg 龙湖西府原著-87㎡-现代简约-客厅6.jpg 龙湖西府原著-87㎡-现代简约-客厅7.jpg 龙湖西府原著-87㎡-现代简约-首图.jpg

龙湖西府原著87平两室两厅现代简约风格林凤装饰的客厅选用石膏板抽缝背景,吊棚选用石膏板跌级边棚,增强举架高度视线感,阳台外扩增加客厅空间。

龙湖西府原著-87㎡-现代简约-餐厅.jpg

龙湖西府原著87平两室两厅现代简约风格林凤装饰的餐厅选择平棚掉灯.边侧选择内反灯带.显得整个空间更加细腻自然.餐厅背景墙采用的白色硬包很有温馨感

龙湖西府原著-87㎡-现代简约-卧室.jpg

龙湖西府原著87平两室两厅现代简约风格林凤装饰的卧室选用床头边吊,采用吊式台灯,床头设计采用护墙板墙裙非常的有立体效果,整个空间很整洁。

龙湖西府原著-87㎡-现代简约-卫生间.jpg

龙湖西府原著87平两室两厅现代简约风格林凤装饰的卫生间选用水箱卧墙式设计.个性简约,运用淋浴屏干湿分离.整体是黑白色调对比,彰显了主人的品味。

龙湖西府原著-87㎡-现代简约-厨房.jpg

龙湖西府原著87平两室两厅现代简约风格林凤装饰的厨房选用深色柜体.操作台选用浅色系让空间有一个强烈反差.灰色的墙砖也跟整个空间很搭调。

龙湖西府原著-87㎡-现代简约-门厅.jpg

龙湖西府原著87平两室两厅现代简约风格林凤装饰的玄关

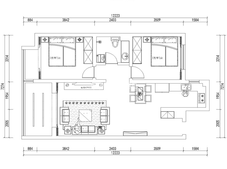
龙湖西府原著-87㎡-现代简约-平面图.jpg

户型图

案例设计师

林凤设计师

设计师:林凤设计师

从业时间:0年

设计理念:

预约设计师

算算你家装修多少钱

报名即享丰厚赠品,享半价装修

免费报价
咨询热线:400-656-9909
20190221103704574636.jpg

精品设计案例

20180612134930523248.jpg 服务号二维码.jpg