立即预约
免费定制整装家居
一站置家 全程无忧 一省到底
设计理念:本案业主为单身小伙,但是作为婚房,所以我们考虑到未来想要给女朋友一个温馨舒适的一个房间,所以本案整体采用现代风格的手法,运用颜色,来打造整体空间的设计感及时尚感。
华强城95平两室两厅现代混搭风格林凤装饰的客厅整体以墨绿色,灰色,红色作为整体颜色的大基调,电视背景墙我们采用,定制装饰柜及定制电视柜,采用简单的石膏线条作为背景墙。
华强城95平两室两厅现代混搭风格林凤装饰的餐厅采用深色的家具,来凸显整体空间的设计感。
华强城95平两室两厅现代混搭风格林凤装饰的卧室整体卧室的墙面,同样采用与客厅一个色系墨绿色,卧室一个休息的房间,选择一个业主喜欢的颜色,就是对于他们最大的满足。
华强城95平两室两厅现代混搭风格林凤装饰的卫生间以灰色墙砖,定制的手盆,成品的浴屏,恰到好处的做到了干湿分离的功能,手盆依然选择整体风格主色,墨绿色为主。
华强城95平两室两厅现代混搭风格林凤装饰的U型厨房,我们选用韩国PET的材质,柜体表面有光泽度,而且颜色选择整体设计风格主题色,墨绿色搭配白色鱼肚白墙面,相比传统厨房的颜色选择,本案的橱柜颜色选择上是一种突破。
华强城95平两室两厅现代混搭风格林凤装饰的玄关
华强城95平两室两厅现代混搭风格林凤装饰的过廊
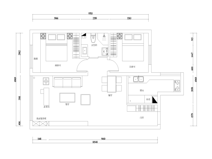
户型图
精品设计案例
设计说明:
三室两厅一厨两卫,高层整体采用美式风格,色调以深色为主,体现美式的居家感和温馨感。
设计说明:
本案业主为年轻时尚小两口,所以我们考虑到未来想要给未来宝宝一个温馨舒适的一个房间,所以本案整体采用现代风格的手法,运用颜色,来打造整体空间的设计感及时尚感
设计说明:
本案以北欧风格为主题的设计,北欧风格能以现代、简洁、自然的特点俘获人心,所营造出来的生活氛围会让人倍感舒适与自在。
设计说明:
客户是一名成功人士,对于家的执念就是简单干净,客户衣服比较多,所以把每个空间都做了大衣柜,并且融入到设计里