立即预约 立即预约
免费定制整装家居

免费定制整装家居

一站置家 全程无忧 一省到底
hide.png

当前位置: 首页 > 装修案例效果图 > 融创中央学府

融创中央学府 300平 现代简约风格效果图

收藏
案例风格 现代简约 案例户型 三居 案例面积 300平米
楼盘名称 融创中央学府 设计师 林凤装饰全案设计师 案例类型 改善性住宅

设计理念:整体设计是由现代极简手法为切入点,做整体空间搭配,让整个空间拥有时尚感,线条简洁,明快。

客厅
第1张
第2张
第3张
第4张
第5张
餐厅
第1张
卧室
第1张
卫生间
第1张
厨房
第1张
休闲区
第1张
衣帽间
第1张
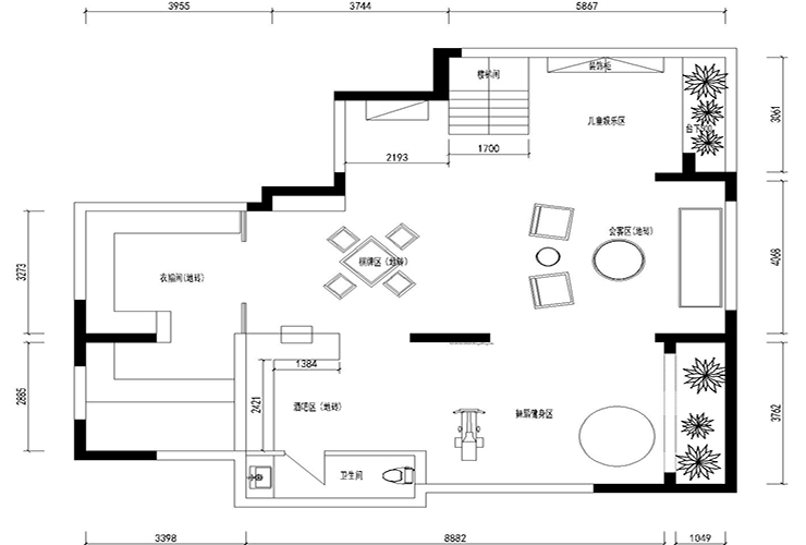
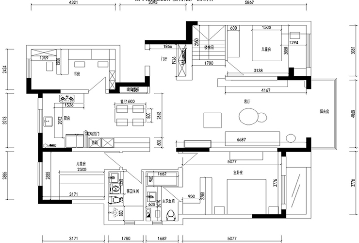
户型图
第1张
第2张
  • 案例详情

S6-姜宇-融创中央学府-300平-现代极简风格-客厅01.jpg S6-姜宇-融创中央学府-300平-现代极简风格-客厅.jpg S6-姜宇-融创中央学府-300平-现代极简风格-首图.jpg S6-姜宇-融创中央学府-300平-现代极简风格-地下室01.jpg S6-姜宇-融创中央学府-300平-现代极简风格-地下室.jpg

融创中央学府300平三居室现代极简风格林凤装饰的沙发材质采用布艺感觉,舒适度高,形状简约,地面采用米灰色的地砖,背景墙采用理石与装饰格的搭配,让原本硬朗的理石多一下柔性和变化,棚面的设计整体平棚,无主灯的设计方案,让客厅空间更加开阔。

S6-姜宇-融创中央学府-300平-现代极简风格-餐厅.jpg

融创中央学府300平三居室现代极简风格林凤装饰的餐厅空间的颜色搭配与客户呼应,在餐厅的一侧做的定制柜的设计,增加厨房的储藏空间。

S6-姜宇-融创中央学府-300平-现代极简风格-主卧室.jpg

融创中央学府300平三居室现代极简风格林凤装饰的卧室空间床头背景采用硬包线条的设计,与棚面的轨道灯的线条感协调一致,让卧室更加具有层次感。

S6-姜宇-融创中央学府-300平-现代极简风格-卫生间.jpg

融创中央学府300平三居室现代极简风格林凤装饰的卫生间空间,采用仿理石纹理的瓷砖,让原本空间比较狭小的卫生间更加开阔简单,浴柜的设计采用定制设计,多一些储藏空间。

S6-姜宇-融创中央学府-300平-现代极简风格-厨房.jpg

融创中央学府300平三居室现代极简风格林凤装饰的是半开放式厨房,所以橱柜颜色的选择与餐厅协调一致,让空间有一种延伸感。

S6-姜宇-融创中央学府-300平-现代极简风格-健身区.jpg

融创中央学府300平三居室现代极简风格林凤装饰的健身区

S6-姜宇-融创中央学府-300平-现代极简风格-衣帽间.jpg

融创中央学府300平三居室现代极简风格林凤装饰的衣帽间

S6-姜宇-融创中央学府-300平-现代极简风格-负一层平面图.jpg S6-姜宇-融创中央学府-300平-现代极简风格-一层平面图.jpg

户型图

案例设计师

林凤装饰全案设计师

设计师:林凤装饰全案设计师

从业时间:12年

设计理念:应时而变,为未来生活而设计

预约设计师

算算你家装修多少钱

报名即享丰厚赠品,品质装修

免费报价
咨询热线:400-656-9909
20190221103704574636.jpg

精品设计案例

20180612134930523248.jpg 服务号二维码.jpg