立即预约 立即预约
免费定制整装家居

免费定制整装家居

一站置家 全程无忧 一省到底
hide.png

当前位置: 首页 > 装修案例效果图 > 龙湖天宸原著

龙湖天宸原著 300平 轻奢风格效果图

收藏
案例风格 轻奢 案例户型 别墅 案例面积 300平米
楼盘名称 龙湖天宸原著 设计师 杨达 案例类型 改善性住宅

设计理念:本案采用的是意式轻奢,大量采用灰色元素与棕色元素作为点缀的结合,整体给人一种低调、内敛、奢华又不夸张的感觉

客厅
第1张
第2张
餐厅
第1张
卧室
第1张
第2张
卫生间
第1张
第2张
厨房
第1张
书房
第1张
休闲区
第1张
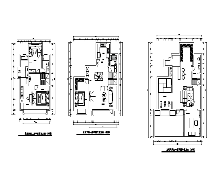
户型图
第1张
龙湖天宸下叠-300㎡-意式轻奢-客厅.jpg 龙湖天宸下叠-300㎡-意式轻奢-客厅3.jpg

龙湖天宸原著300平别墅意式轻奢风格林凤装饰的客厅采用直线边棚来区分餐厅与客厅区域,电视背景墙用仿理石的瓷砖与两侧边框做结合,沙发背景墙是定制的柜子与电视背景相呼应。沙发选用米灰色布艺棕色皮质结合的沙发,在满足舒适感的同时保证后期方便清洁,也在观赏性上得到了提高。

龙湖天宸下叠-300㎡-意式轻奢-餐厅.jpg

龙湖天宸原著300平别墅意式轻奢风格林凤装饰的餐厅位置选用的是六人理石台面的长桌,若朋友来小聚也可以满足用餐需求。配色上也与客厅完美的呼应,满足了就餐的同时满足美观。

龙湖天宸下叠-300㎡-意式轻奢-次卧.jpg 龙湖天宸下叠-300㎡-意式轻奢-主卧.jpg

主卧室说明:由于卧室面积足够大,所以在中间位置做了一个隔断,这样既能使衣帽间和卧室隔开,并在隔段两侧放置电视与梳妆台,使空间利用到最大化,满足了主人的整体的功能需求。

龙湖天宸下叠-300㎡-意式轻奢-卫生间.jpg 龙湖天宸下叠-300㎡-意式轻奢-卫生间2.jpg

龙湖天宸原著300平别墅意式轻奢风格林凤装饰的卫生间有窗,在后期选材上选用的是浅色的瓷砖。搭配理石台面的洗漱柜,使视觉上觉得卫生间变大且整洁。

龙湖天宸下叠-300㎡-意式轻奢-厨房.jpg

龙湖天宸原著300平别墅意式轻奢风格林凤装饰的厨房墙面采用白色瓷砖,在满足视觉上的同时的也会更加容易处理卫生。橱柜采用的是方便使用的U型橱柜,上柜体采用白色并在两侧分布,下柜体选用的是深色柜体,台板选用的是与地面搭配的台面,这样更有空间感也使得客厅、餐厅、厨房这三个区域虽明确的划分但又相互搭配。

龙湖天宸下叠-300㎡-意式轻奢-书房.jpg

龙湖天宸原著300平别墅意式轻奢风格林凤装饰的书房

龙湖天宸下叠-300㎡-意式轻奢-健身区.jpg

龙湖天宸原著300平别墅意式轻奢风格林凤装饰的健身区

龙湖·天宸下叠-300㎡布局.jpg

案例设计师

杨达

设计师:杨达

从业时间:10年

设计理念:精雕细琢,返璞归真。

预约设计师

算算你家装修多少钱

报名即享丰厚赠品,品质装修

免费报价
咨询热线:400-656-9909
20190221103704574636.jpg

精品设计案例

20180612134930523248.jpg 服务号二维码.jpg