立即预约 立即预约
免费定制整装家居

免费定制整装家居

一站置家 全程无忧 一省到底
hide.png

当前位置: 首页 > 装修案例效果图 > 锦绣观邸

锦绣观邸 170平 新中式风格效果图

收藏
案例风格 新中式 案例户型 四居 案例面积 170平米
楼盘名称 锦绣观邸 设计师 吴勇 案例类型 改善性住宅

设计理念:新中式是风格是对舒适生活的一种态度,本案例追求的是舒适自然,沉稳又不失韵味,通过实木家具的展现,将整体色彩以及格局凸显出来。

客厅
第1张
第2张
餐厅
第1张
卧室
第1张
卫生间
第1张
厨房
第1张
儿童房
第1张
休闲区
第1张
门厅
第1张
过廊
第1张
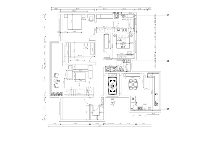
户型图
第1张
锦绣观邸-170平-新中式-客厅1.jpg 锦绣观邸-170平-新中式-客厅.jpg

锦绣观邸170平四室两厅新中式风格林凤装饰的客厅里有理石踏步的楼梯,楼梯下做景观,配合上灯光,将客厅的氛围感体现出来,然后沙发背景用的是实木护墙板装饰,体现出大气的感觉。实木的中式圈椅分别置于两侧,新中式的感觉油然而生。

锦绣观邸-170平-新中式-餐厅.jpg

锦绣观邸170平四室两厅新中式风格林凤装饰的餐厅位于入户门的右侧,一个独立空间,旁边搭配中式博古架及酒柜,整体更为和谐,后期在装饰挂画上面会考虑整体性,餐厅本来就是一个很安稳的就餐空间,尽量简化,不需要繁琐的造型。

锦绣观邸-170平-新中式-主卧室.jpg

锦绣观邸170平四室两厅新中式风格林凤装饰的主卧室床头背景采用的是实木线及护墙板的装饰,硬包装饰其中,将房主人对风格的要求及质感的追求展现出来。宽棚线及窗帘盒显得更为协调。床下块毯与床品相呼应,非常温馨。

锦绣观邸-170平-新中式-卫生间.jpg

锦绣观邸170平四室两厅新中式风格林凤装饰的卫生间选择大理石纹理的瓷砖,搭配嵌入式的浴缸,与定制的洗手台相结合,浴缸上方设置壁龛,既大气又实用,将洗浴用品很好的收纳起来,理石的感觉将整个卫生间装饰的更为温馨有档次。

锦绣观邸-170平-新中式-厨房.jpg

锦绣观邸170平四室两厅新中式风格林凤装饰的厨房是开放式的,在厨房的尽头设计吧台,既增加了房主对厨房的实用希求,也通过吧台将餐厅与厨房互相分隔开, L型实木橱柜更能将中式的感觉凸显出来,展示了房主人对生活美好的向往及对美食与品味的很好的展现。

锦绣观邸-170平-新中式-儿童房.jpg

锦绣观邸170平四室两厅新中式风格林凤装饰的儿童房

锦绣观邸-170平-新中式-二楼.jpg

锦绣观邸170平四室两厅新中式风格林凤装饰的二楼休闲区

锦绣观邸-170平-新中式-首图.jpg

锦绣观邸170平四室两厅新中式风格林凤装饰的玄关

锦绣观邸-170平-新中式-过廊.jpg

锦绣观邸170平四室两厅新中式风格林凤装饰的过廊

锦绣观邸-170平-新中式-平面图.jpg

案例设计师

吴勇

设计师:吴勇

从业时间:11年

设计理念:用抽象的思维去设计形象的事物

预约设计师

算算你家装修多少钱

报名即享丰厚赠品,品质装修

免费报价
咨询热线:400-656-9909
20190221103704574636.jpg

精品设计案例

20180612134930523248.jpg 服务号二维码.jpg