立即预约 立即预约
免费定制整装家居

免费定制整装家居

一站置家 全程无忧 一省到底
hide.png

当前位置: 首页 > 装修案例效果图 > 中航城两河流域

中航城两河流域 140平 现代简约风格效果图

收藏
案例风格 现代简约 案例户型 三居 案例面积 140平米
楼盘名称 中航城两河流域 设计师 林凤设计师 案例类型 改善性住宅

设计理念:本案是现代简约风格,主要是以简洁造型为主。所以本方案设计时整体的色调上选择的是胡桃木色搭配一些橙色软装配饰,室内的家具都是以简约好打理为主以及木色为主,凸显出现代简约的风格。

客厅
第1张
第2张
第3张
餐厅
第1张
卫生间
第1张
厨房
第1张
书房
第1张
儿童房
第1张
过廊
第1张
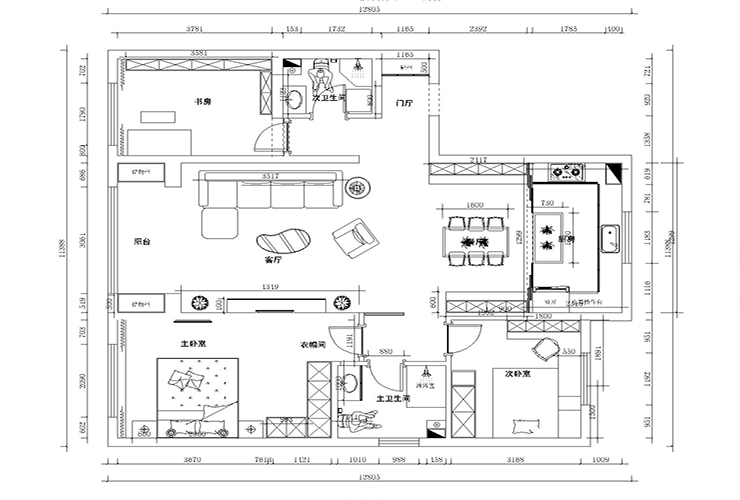
户型图
第1张
  • 案例详情

S8-中航城两河流域-140平-现代风格- 客厅2.jpg S8-中航城两河流域-140平-现代风格- 客厅1.jpg S8-中航城两河流域-140平-现代风格- 首图.jpg

中航城两河流域140平三室两厅现代风格林凤装饰的客厅的空间吊顶造型比较简单,沙发墙和电视墙两边做石膏板直线边棚收边,电视背景墙造型简洁美观,是以硬包和护墙板的结合,电视柜组合形式为主,沙发墙后期按照风格的要求放置一组装饰画简约大气。

S8-中航城两河流域-140平-现代风格- 餐厅.jpg

中航城两河流域140平三室两厅现代风格林凤装饰的餐厅棚顶角线将餐厅空间划分为独立区域,本案餐厅区浅胡桃木色餐桌,搭配同款色系的餐椅,吊灯与餐桌餐椅形成一个空间,整体与客厅空间相呼应。餐厅墙面放一组客户需要的电视,两侧的胡桃木柜子增大的非常多的储物空间。

S8-中航城两河流域-140平-现代风格- 次卫生间.jpg

中航城两河流域140平三室两厅现代风格林凤装饰的卫生间

S8-中航城两河流域-140平-现代风格- 厨房.jpg

中航城两河流域140平三室两厅现代风格林凤装饰的厨房的利用空间和功能实用性是非常重要的女主人要求厨房需要洗碗机,集成灶还有一些智能五金件,现代的人的生活都是追求更加智能化的生活,所以现在厨房的格局相比几年前的设计比要更现代化很多。

S8-中航城两河流域-140平-现代风格- 书房.jpg

中航城两河流域140平三室两厅现代风格林凤装饰的书房

S8-中航城两河流域-140平-现代风格- 女儿房1.jpg

中航城两河流域140平三室两厅现代风格林凤装饰的女儿房床头背景墙刷了一面浅黄色的乳胶漆,看起来很温馨,衣柜是索菲亚定制柜。南面主卧室也是床头墙面刷了些暖一些的浅色乳胶漆,南次卧室就是一书房喂猪。平时两位男女主人会经常在家办公需要一个这样的学习交流的空间。

S8-中航城两河流域-140平-现代风格- 过道.jpg

中航城两河流域140平三室两厅现代风格林凤装饰的过廊

S8-中航城两河流域-140平-现代风格- 平面图.jpg

案例设计师

林凤设计师

设计师:林凤设计师

从业时间:6年

设计理念:一切随心,用心去感悟空间

预约设计师

算算你家装修多少钱

报名即享丰厚赠品,享半价装修

免费报价
咨询热线:400-656-9909
20190221103704574636.jpg

精品设计案例

20180612134930523248.jpg 服务号二维码.jpg