立即预约 立即预约
免费定制整装家居

免费定制整装家居

一站置家 全程无忧 一省到底
hide.png

当前位置: 首页 > 装修案例效果图 > 府城铭邸

府城铭邸 110平 现代简约风格效果图

收藏
案例风格 现代简约 案例户型 三居 案例面积 110平米
楼盘名称 府城铭邸 设计师 林凤装饰设计师 案例类型 改善性住宅

设计理念:加强的现代感 撞色思维 简单中的不简单。

客厅
第1张
第2张
第3张
餐厅
第1张
第2张
卧室
第1张
卫生间
第1张
厨房
第1张
休闲区
第1张
第2张
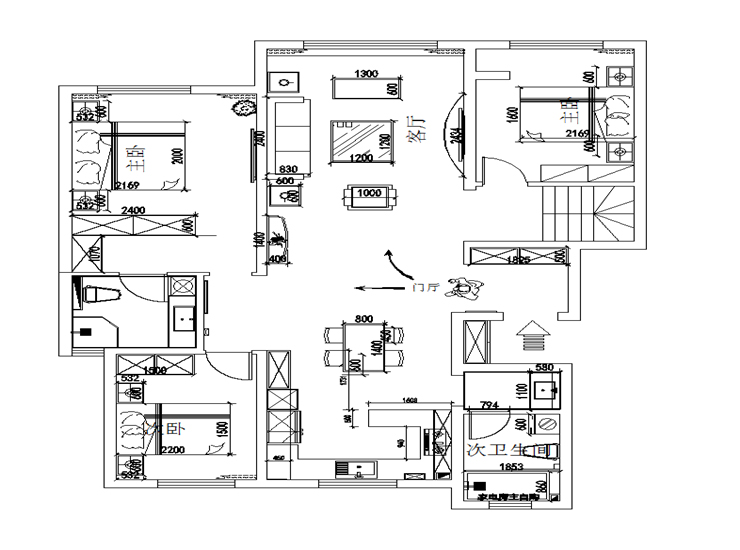
户型图
第1张
  • 案例详情

府城铭邸110-现代风格-客厅.jpg 府城铭邸110-现代风格-客厅1.jpg 府城铭邸110-现代风格-沙发背景.jpg

府城铭邸110平三室两厅现代风格林凤装饰的客厅主色还是黑暗色系 地砖的选择是哑光柔抛系列,电视背景墙运用了大板瓷砖上墙,奠定了现代基调,灰色壁纸体现了中性风,橘色撞色让空间变得更现代更时尚。

府城铭邸110-现代风格-餐厅.jpg 府城铭邸110-现代风格-餐厅1.jpg

府城铭邸110平三室两厅现代风格林凤装饰的餐厅白色理石餐桌,4把咖啡色得餐椅,与客厅沙发空间得抱枕关联在一起,属于颜色上得结合。瓷砖经典鱼肚白,让厨房变得更加干净,木色德橱柜,让空间又回到了自然地感觉。

府城铭邸110-现代风格-卧室.jpg

府城铭邸110平三室两厅现代风格林凤装饰的主卧室背景采用当下比较流行雾霾蓝乳胶漆,配上软包床头,,染空间显得更加舒适 开放格的设计 可以增加触头柜的储藏空间,柜体的颜色和其他空间颜色更加统一 增加了收纳能力。

府城铭邸110-现代风格-卫生间.jpg

府城铭邸110平三室两厅现代风格林凤装饰的卫生间采用大理石台面设计得设计手法,让空间非常大气 ,灰色墙砖和室外空间做出了呼应 现代都市的时尚气息 更加体现的淋漓尽致。

府城铭邸110-现代风格-厨房.jpg

府城铭邸110平三室两厅现代风格林凤装饰的厨房墙选用爵士白瓷砖、深色台面 木色柜门,敞开式得厨房,让厨房与客厅整体衔接。橙色是空间的设计亮点 也做好了空间的分隔 又做好了空间的衔接 。

府城铭邸110-现代风格-吧台.jpg 府城铭邸110-现代风格-吧台1.jpg

府城铭邸110平三室两厅现代风格林凤装饰的吧台

平面布局图.jpg

案例设计师

林凤装饰设计师

设计师:林凤装饰设计师

从业时间:6年

设计理念:Less is more.

预约设计师

算算你家装修多少钱

报名即享丰厚赠品,品质装修

免费报价
咨询热线:400-656-9909
20190221103704574636.jpg

精品设计案例

20180612134930523248.jpg 服务号二维码.jpg