立即预约 立即预约
免费定制整装家居

免费定制整装家居

一站置家 全程无忧 一省到底
hide.png

当前位置: 首页 > 装修案例效果图 > 碧桂园大城印象

碧桂园大城印象 120平 现代简约风格效果图

收藏
案例风格 现代简约 案例户型 三居 案例面积 120平米
楼盘名称 碧桂园大城印象 设计师 林凤装饰设计 案例类型 改善性住宅

设计理念:本方案为现代极简风格,以简洁和实用为首要考虑方向,让人感觉舒适。此次大量使用木饰家具,可让人感觉更放松。

客厅
第1张
第2张
餐厅
第1张
卧室
第1张
第2张
卫生间
第1张
厨房
第1张
衣帽间
第1张
门厅
第1张
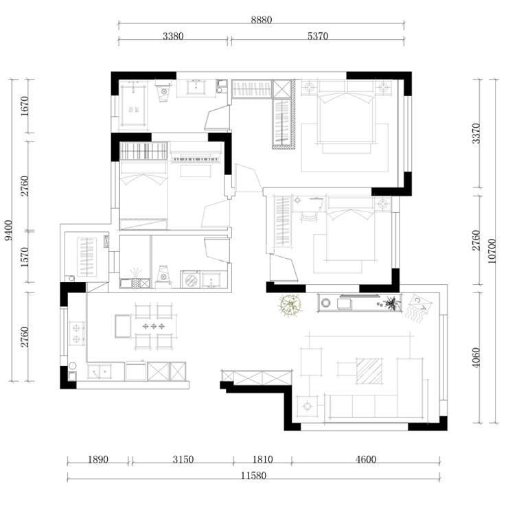
户型图
第1张
  • 案例详情

S2-碧桂园大城印象-120平-现代-客厅.jpg S2-碧桂园大城印象-120平-现代-客厅2.jpg

碧桂园大城印象120平三室两厅现代风格林凤装饰的客厅背景墙选用的是壁柜嵌入电视的设计,这样既有美观效果,又能达到后期的实用性,可以增加室内的收藏空间。沙发背景墙则是选择了大幅壁画单侧悬挂,增加空间的延伸性。

S2-碧桂园大城印象-120平-现代-餐厅.jpg

碧桂园大城印象120平三室两厅现代风格林凤装饰的餐厅属于餐厨一体式设计,摒弃了传统意义上的厨房与餐厅分开的概念。餐桌连接着岛台,这样后期在厨房操作中,可以与家人有更多的互动。

S2-碧桂园大城印象-120平-现代-卧室.jpg S2-碧桂园大城印象-120平-现代-榻榻米.jpg

碧桂园大城印象120平三室两厅现代风格林凤装饰的主卧室设计了一个单独的衣帽间,在从卫生间出来的过程中先是经过衣帽间,使生活中的动线更加的方便。衣帽间选用高柜和抽屉相结合的设计,这样可以根据不同高度的需求来搁放不同尺寸的衣物。衣帽柜内嵌入灯带,不但在实用上更加方便了,在视觉上也更有仪式感。

S2-碧桂园大城印象-120平-现代-卫生间.jpg

碧桂园大城印象120平三室两厅现代风格林凤装饰的卫生间属于长条形卫生间,在最内侧做的淋浴空间,并且用玻璃浴屏进行分区,达到一个干湿分离的作用,后期的打理会更加的方便。整体卫生间的色调跟客厅的砖结合,偏灰色系,使整体感觉更加协调。

S2-碧桂园大城印象-120平-现代-厨房.jpg

碧桂园大城印象120平三室两厅现代风格林凤装饰的厨房岛台也增加了厨房的台面操作空间,U字形的过道设计,就算是朋友一起在厨房帮忙也不会觉得过于拥挤。蒸箱烤箱电器选择嵌入到冰箱旁的高柜中,因为考虑到女主人的腰不好,若是按照传统意义上嵌入到橱柜下柜中,后期在拿取东西时,对腰部肌肉要求较高,所以我选择嵌入高柜中,根据女主人的身高,来选择更舒服的操作高度。

S2-碧桂园大城印象-120平-现代-衣帽间.jpg

碧桂园大城印象120平三室两厅现代风格林凤装饰的衣帽间

S2-碧桂园大城印象-120平-现代-门厅.jpg

碧桂园大城印象120平三室两厅现代风格林凤装饰的玄关

S2-碧桂园大城印象-120平-现代-户型图.jpg

案例设计师

林凤装饰设计

设计师:林凤装饰设计

从业时间:6年

设计理念:因生活而设计,因设计而美好。

预约设计师

算算你家装修多少钱

报名即享丰厚赠品,品质装修

免费报价
咨询热线:400-656-9909
20190221103704574636.jpg

精品设计案例

20180612134930523248.jpg 服务号二维码.jpg