立即预约 立即预约
免费定制整装家居

免费定制整装家居

一站置家 全程无忧 一省到底
hide.png

当前位置: 首页 > 装修案例效果图 > 华润置地八号院

华润置地八号院 160平 轻奢风格效果图

收藏
案例风格 轻奢 案例户型 四居 案例面积 160平米
楼盘名称 华润置地八号院 设计师 邵丹 案例类型 改善性住宅

设计理念:轻奢风格,时尚不失品味。业主是在北京工作,生活的快节奏和对生活的追求,利用轻奢风格完美的体现了与众不同的生活态度。

客厅
第1张
第2张
第3张
第4张
卧室
第1张
第2张
第3张
卫生间
第1张
厨房
第1张
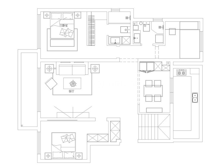
户型图
第1张
  • 案例详情

s2-华润八号院-160平-轻奢风格-客厅 (2).jpg s2-华润八号院-160平-轻奢风格-客厅 (3).jpg s2-华润八号院-160平-轻奢风格-首客厅.jpg s2-华润八号院-160平-轻奢风格-首图.jpg

华润置地八号院160平四室两厅轻奢风格林凤装饰的客厅选用雅士白得理石背景墙,木质护墙板与隐形门完美结合,凸显轻奢风格的简约与高贵,灰色地砖更显高级感一份,轻奢风格搭配斜顶的造型,拉伸了空间的距离感。

s2-华润八号院-160平-轻奢风格-卧室 (2).jpg s2-华润八号院-160平-轻奢风格-卧室 (3).jpg s2-华润八号院-160平-轻奢风格-卧室.jpg

华润置地八号院160平四室两厅轻奢风格林凤装饰的主卧室采用无主灯设计,时尚与简约同步,玻璃形态的衣柜,极具高级感。

s2-华润八号院-160平-轻奢风格-卫生间.jpg

华润置地八号院160平四室两厅轻奢风格林凤装饰的卫生间灰色的卫浴柜,理石纹理的墙地砖,使空间品质更高提升。

s2-华润八号院-160平-轻奢风格-厨房.jpg

华润置地八号院160平四室两厅轻奢风格林凤装饰的厨房选用原木与金属的完美结合,既干净又高雅,处处彰显着不凡的生活品质。

s2-华润八号院-160平-轻奢风格-平面图.jpg

案例设计师

邵丹

设计师:邵丹

从业时间:8年

设计理念:细节决定品质。

预约设计师

算算你家装修多少钱

报名即享丰厚赠品,品质装修

免费报价
咨询热线:400-656-9909
20190221103704574636.jpg

精品设计案例

20180612134930523248.jpg 服务号二维码.jpg