立即预约 立即预约
免费定制整装家居

免费定制整装家居

一站置家 全程无忧 一省到底
hide.png

当前位置: 首页 > 装修案例效果图 > 新加坡城

新加坡城 82平 现代简约风格效果图

收藏
案例风格 现代简约 案例户型 二居 案例面积 82平米
楼盘名称 新加坡城 设计师 林凤装饰设计师 案例类型 婚房

设计理念:现代简约风格,就是让所有的细节看上去都是非常简洁的。装修中的极简便是让空间看上去非常简洁,大气。本方案采用软装来配色整体空间,尤其是客厅和厨房的设计。

客厅
第1张
第2张
第3张
第4张
餐厅
第1张
第2张
卧室
第1张
厨房
第1张
第2张
儿童房
第1张
门厅
第1张
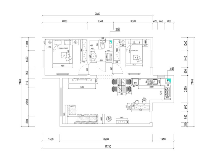
户型图
第1张
  • 案例详情

康健-新加坡城-82平-现代风格-客厅 (4).jpg 康健-新加坡城-82平-现代风格-客厅.jpg 康健-新加坡城-82平-现代风格-客厅 (2).jpg 康健-新加坡城-82平-现代风格-客厅 (3).jpg

客厅中最重要的是沙发和电视柜,搭配整个空间需要设计师大胆的配色,沙发采用蓝色的布艺沙发,原木的圆形的茶几,蓝色和白色的地毯,让空间大跳跃,白色的电视柜放一些自己喜欢的书,一是让整体增加储物空间,二是让电视柜也成一个书柜,彰显业主的身份。

康健-新加坡城-82平-现代风格-餐厅 (2).jpg 康健-新加坡城-82平-现代风格-餐厅.jpg

餐厅重要的就是餐桌和灯具了,灯具是和餐桌配套的,白色的桌面和电视柜的面是一样材质的,相互配套,皮色的靠椅让空间沉重感。

康健-新加坡城-82平-现代风格-卧室.jpg

卧室是业主最喜欢的地方,内心什么样子的在卧室基本就能体现,深色的荧光壁纸,让空间增加暖色系,紫红的五件套体现业主的内心的热情,床头柜上面的小吊灯是根据客户要求,睡觉前看看书用的,整体设计感极强。

康健-新加坡城-82平-现代风格-厨房.jpg 康健-新加坡城-82平-现代风格-厨房 (2).jpg

厨房是本案设计的亮点,因为空间比较小,所选用了敞开式的厨房,咖啡色的皮纹墙砖,配上白色的油漆橱柜,干净整洁,让做饭的时候都有一个好心情,旁边还有一个吧台急鞋柜是一体,黑色的吧台凳和白色的鞋柜绝配。鞋柜和吧台公用,空间规划协和。

康健-新加坡城-82平-现代风格-儿童房.jpg 康健-新加坡城-82平-现代风格-玄关.jpg 康健-新加坡城-82平-现代风格-平面.jpg

案例设计师

林凤装饰设计师

设计师:林凤装饰设计师

从业时间:9年

设计理念:用最自由,浪漫的元素来表达灵感。

预约设计师

算算你家装修多少钱

报名即享丰厚赠品,品质装修

免费报价
咨询热线:400-656-9909
20190221103704574636.jpg

精品设计案例

20180612134930523248.jpg 服务号二维码.jpg