立即预约 立即预约
免费定制整装家居

免费定制整装家居

一站置家 全程无忧 一省到底
hide.png

当前位置: 首页 > 装修案例效果图 > 绿地海域香庭

绿地海域香庭 119平 现代简约风格效果图

收藏
案例风格 现代简约 案例户型 三居 案例面积 119平米
楼盘名称 绿地海域香庭 设计师 林凤设计师 案例类型 改善性住宅

设计理念:三口之家, 喜欢收纳功能充足,简单大气的感觉。

客厅
第1张
餐厅
第1张
第2张
卧室
第1张
第2张
卫生间
第1张
厨房
第1张
儿童房
第1张
门厅
第1张
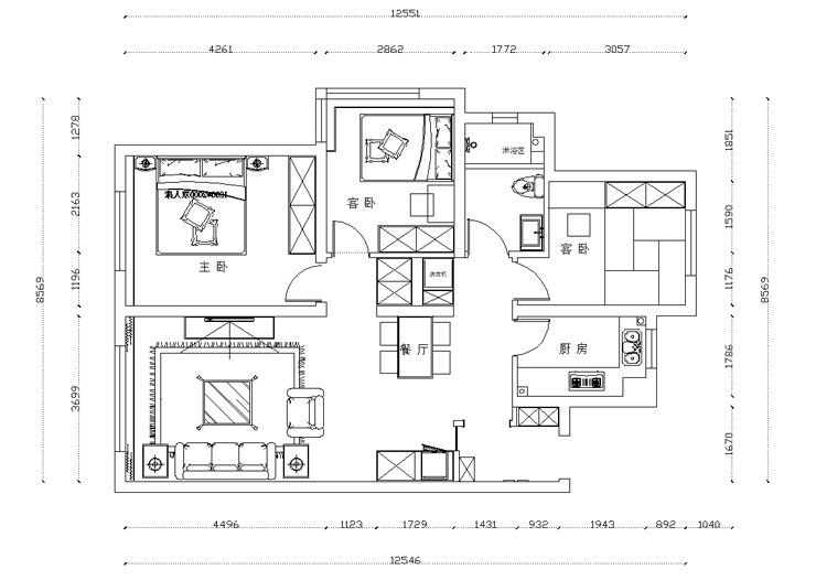
户型图
第1张
  • 案例详情

绿地海域香庭-119平-现代风格-首图.jpg

绿地海域香庭119平三室两厅现代风格林凤装饰的客厅电视背景墙用的是灰色的壁纸, 铺贴简单大气的理石背景墙. 客厅电视上方放的筒灯辅助光源起到了画龙点睛的作用, 几个筒灯照到墙面上, 使整体感觉瞬间完美。

绿地海域香庭-119平-现代风格-餐厅2图.jpg 绿地海域香庭-119平-现代风格-餐厅图.jpg

绿地海域香庭119平三室两厅现代风格林凤装饰的餐厅的地面用的是具有现代风格的灰色地砖, 餐桌单独空间, 这样看着餐厅效果特别出彩, 使家里面整体不失浪漫的味道。

绿地海域香庭-119平-现代风格-主卧室图.jpg 绿地海域香庭-119平-现代风格-次卧图.jpg

绿地海域香庭119平三室两厅现代风格林凤装饰的主卧室墙面刷的深蓝色的乳胶漆,地面用的是胡桃木色的地板, 两个并不搭配的颜色中间放了一个深色的床来起到调和的作用, 整体效果看起来舒适并且不失美感。

绿地海域香庭-119平-现代风格-卫生间图.jpg

绿地海域香庭119平三室两厅现代风格林凤装饰的卫生间的设计现代感觉比较强烈,灰色横纹的墙砖的手盆使空间感延伸, 卫生间的淋浴区用浴屏做分割,形成了干湿分离方便打理。

绿地海域香庭-119平-现代风格-厨房图.jpg

绿地海域香庭119平三室两厅现代风格林凤装饰的厨房选择灰色的墙砖与深灰色的上下柜, 中间加了一个白色的理石台面, 层次感分明,白色会显得空间大,灰色代表着现代感.,而且还起到了分割的作用, 厨房整体的效果简单还不失设计感。

绿地海域香庭-119平-现代风格-儿童房图.jpg

绿地海域香庭119平三室两厅现代风格林凤装饰的儿童房

绿地海域香庭-119平-现代风格-门厅图.jpg

绿地海域香庭119平三室两厅现代风格林凤装饰的玄关

绿地海域香庭-119平-现代风格-平面图.jpg

案例设计师

林凤设计师

设计师:林凤设计师

从业时间:10年

设计理念:以人为本

预约设计师

算算你家装修多少钱

报名即享丰厚赠品,品质装修

免费报价
咨询热线:400-656-9909
20190221103704574636.jpg

精品设计案例

20180612134930523248.jpg 服务号二维码.jpg